Modern container houses are redefining the housing industry. These innovative homes take the practical structure of shipping containers and transform them into stylish, functional living spaces.
For builders, contractors, and designers like you, the rise of modern shipping container homes presents a unique opportunity to meet a growing demand and expand your business.
To help you keep up, we’ll explore:
- The latest trends in shipping container house design
- Shipping container home layouts and tips for designing them
Whether you’re a seasoned contractor or new to designing container homes, this guide will help you stay ahead of the curve in 2025 and beyond.
Why trust us? Here are Cedreo, we’ve got 20+ years of experience working with housing pros in the home design space. So we know what it takes for contractors and designers to design contemporary homes that land them more clients!
What Makes Modern Container Homes Unique and Beneficial?
Modern shipping container homes have become a symbol of innovative and sustainable living. They’re not only unique in their design but also offer attractive advantages for homeowners and builders.
Modern aesthetics: in the past, shipping container houses were drab, industrial-looking structures. But modern container homes have moved past that and feature modern aesthetics in a variety of styles.
Sustainability and eco-friendliness: repurposing shipping containers gives them a second life. This reduces waste and conserves resources. Use recycled materials and boost the eco-friendliness even more.
Reduced costs: by using a pre-fabricated structure, you can save on some construction costs.
Design flexibility: modular structures enable endless custom designs and creative layouts.
Durability and longevity: shipping containers are durable and built to endure harsh conditions and be structurally sound.
It’s easy to see why in 2025, shipping container homes are the perfect solution for builders and contractors who want to provide creative, affordable, and sustainable living spaces for a variety of clients.
Check out the next section with some current trends and how you can use them.
Current Design Trends for Modern Container Houses
A modern shipping container home doesn’t have to be a cold, utilitarian-style house. Here are some fresh design trends you can implement in your shipping container home designs.
Open-Concept Layouts and Flexible Spaces
About this modern trend:
Open-concept layouts are a hallmark of modern container homes. They help small spaces feel expansive and versatile. These layouts eliminate unnecessary walls and create multifunctional adaptable spaces.

Tips for incorporating in your projects:
- Make the kitchen, dining, and living area all one space without interior wall dividers.
- Use sliding doors: Go with sliding or pocket doors for more flexible transitions between private and shared spaces that don’t encroach on the open space in the container.
Maximize Natural Light with Smart Openings and Skylights
About this modern shipping container house trend:
Natural light makes cramped interiors feel brighter, larger, and more inviting. Oversized windows and skylights also help improve the home’s energy efficiency by reducing the need for artificial lighting during the day.

Tips for incorporating in your projects:
- Install floor-to-ceiling windows: Use large glass panes on south-facing walls to capture maximum sunlight throughout the day.
- Position skylights strategically: Place skylights above central areas like kitchens or living rooms to create a focal point that also increases natural illumination.
Blend Outdoor & Indoor Spaces with Stylish Cladding
About this modern trend:
Stylish cladding matched to the interior style helps merge the exterior and interior of container homes by creating a cohesive aesthetic. The right cladding also improves the curb appeal and eliminates the utilitarian minimalist look that most think of when they envision standard shipping containers.

Tips for incorporating in your shipping container home projects:
- Choose complementary materials: Use wood or metal cladding that complements the interior design for a unified look.
- Incorporate large sliding doors: Install full-width sliding doors to create a seamless transition between indoor spaces and outdoor areas.
Incorporate Modern Technology for Smarter Living
About this modern trend:
Modern shipping container homes integrate smart technology to improve convenience, efficiency, and security. Tech features like these help a shipping container home align with contemporary living standards instead of being a bare-bones budget housing option.
Tips for incorporating in your shipping container home projects:
- Plan for wiring early: Incorporate smart wiring systems during the construction phase to avoid retrofitting costs.
- Automate lighting and climate control: Use app-controlled systems for lighting and thermostats.
- Include smart locks and places for cameras.
Creative Use of Color and Materials for Exterior Finishes
About this modern trend:
Bold colors and sustainable materials have transformed the way most perceive modern container homes.

Tips for incorporating in your custom designs:
- Experiment with bold accent colors: Use vibrant shades on key areas like entryways or trim to create a striking visual statement.
- Choose eco-friendly materials: Opt for bamboo cladding, recycled steel, or other sustainable materials to align with green building goals.
- Incorporate weathered finishes: Use materials like corten steel to achieve a natural patina that adds rustic elegance over time and contributes to the industrial look of the shipping container home.
- Mix and match textures: Combine smooth and textured finishes, like wood and metal, to create dynamic visual interest.
Modern container house designs continue to evolve, offering exciting opportunities for builders and contractors to innovate. By incorporating these trends thoughtfully, you can deliver container homes that are both functional and inspiring.
How to Plan a Modern Container House Design
With such a small space to work with, careful planning is important when you’re creating a modern container house design. Here are three steps that will help make your shipping container house project a success.
Choose the Right Shipping Containers for Your Project
The foundation of a successful container home starts with selecting the right containers. Not all containers are created equal, so it’s important to prioritize quality and suitability.
Tips for Sourcing and Evaluating Containers:
- Inspect for structural integrity: Look for containers with minimal dents, rust, or damage, particularly on the corners and edges that bear the most load.
- Choose the right size: Use 20-foot containers for compact designs or 40-foot containers for larger homes or multi-container projects. You can also use combinations of two containers of different sizes.
- IMPORTANT! Verify previous usage: Avoid containers that have carried hazardous materials by checking their certification markings and prior use records.
- Try to find one-trip shipping containers: These shipping containers are used only once and are in near-new condition. They may be more expensive to purchase but you’ll save when you don’t need to make extensive repairs or refurbishments.
Optimize Layout for Functionality and Comfort
The layout of a container house determines its livability and flow. Since you don’t have a lot of space, it’s good to spend some extra time ensuring every square foot serves a purpose without feeling cramped.
Tips for Layout Optimization:
- Centralize utilities: Group kitchens, bathrooms, and laundry areas to simplify plumbing and electrical installations.
- Maximize vertical space: Use features like lofted sleeping areas and tall cabinets.
- Consider future expansion: Plan for potential add-ons or modifications in case the homeowner’s needs evolve.
Use Home Design Software to Visualize and Perfect Your Plan
Visualizing your design in 3D is crucial for identifying potential challenges and helping your clients make better design decisions.
And because of the small nature of a shipping container home, it’s even more important to help your clients envision the interior space. It can be really hard for clients to tell from a 2D plan if the interior will feel cramped and dark.
3D home design software simplifies this process by providing accurate, customizable layouts and visualizations.
How Design Tools Like Cedreo Can Help:
- Create 2D floor plans and 3D floor plans that reflect the unique dimensions of shipping containers.
- Easily test multiple configurations to find the most efficient and visually appealing design.
- Generate realistic 3D renderings to help clients envision the completed project.
By leveraging 3D design software, you can turn shipping container home concepts into polished, practical designs that impress clients and land you more jobs!
Contemporary Shipping Container Homes to Inspire Your Next Project
Here are some inspiring shipping container home examples to spark ideas for your next project:
20’ Single-Container Studios: A Compact Living Solution
Minimalist studios made from a single 20-foot shipping container are perfect for individuals, guest houses, off-the-grid cabins, or affordable mother-in-law suites.

Features to Consider:
- Combine a living area with a kitchenette and a fold-out bed to maximize the use of limited space.
- Install a sliding glass door to connect the interior with an outdoor patio. This helps visually expand the living area.
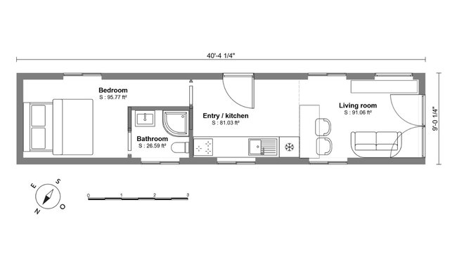
40’ Single-Container Homes: The Tiny Home
A single 40-foot container transforms into a versatile tiny house. A shipping container home like this is perfect for a single person or a couple who wants affordable simplicity or even an efficient house that’s easy to use off-the-grid.

Features to Consider:
- Add large windows and skylights to make the compact interior feel open and airy.
- Think about adding a rooftop garden or deck. Not only does it extend the usable space, but it also helps improve insulation.
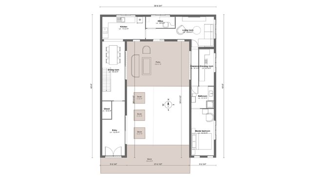
Multi-Container Family Homes: Spacious and Functional
Multi-container homes are designed for families or couples who are interested in a larger space. They combine shipping containers into spacious layouts with more space for a modern kitchen and living area. The shipping containers can be connected to each other, but you can also keep them separated.

Features to Consider:
- Use one container for shared spaces like a living room and kitchen, and others for bedrooms and bathrooms.
- Consider placing the containers on the site so as to create a central courtyard that works as a gathering area.
Unique Layouts: U-Shape and L-Shape Designs
Get creative with layouts, such as U-shape and L-shape configurations.

Features to Consider:
- Position containers around a central outdoor area, such as a pool or patio.
- Use the layout to maximize light and airflow by orienting the open side toward the sun.
- Incorporate covered walkways or pergolas to connect spaces while adding architectural interest to the site.
Three-Bedroom Homes with Extra Living Spaces
Larger households can benefit from a three-bedroom shipping container home that provides extra space and multi-purpose rooms.

Features to Consider:
- Use container combinations that let you create larger bedrooms and shared spaces like a family room. Do this by placing containers side by side and cutting openings in the containers to open up the space.
Luxury Modern Container Homes with High-End Features
Luxury container homes prove that sustainability and sophistication can coexist. These designs elevate container living with premium finishes and amenities.

Features to Consider:
- Add custom cladding, such as corten steel or wood, for a sleek, modern exterior.
- Include high-end features like gourmet kitchens, spa-style bathrooms, and built-in smart home systems.
- Design outdoor entertainment areas with features like fire pits, swimming pools, and rooftop lounges.
How Cedreo Simplifies Modern Container House Design
From planning to construction, designing a modern container house requires creativity, the right tools, and clear communication with clients. Having a tool like Cedreo streamlines this process and makes it so much easier for builders, remodelers, and construction professionals to create stunning designs and present them professionally.

Whether you’re working on a compact studio or a luxurious multi-container home, Cedreo gives you the tools you need to turn your ideas into reality.
Cedreo Features That Make a Difference:
- Intelligent floor plan software: Quickly design detailed 2D and 3D layouts tailored to container dimensions.
- Realistic 3D Renderings: Help clients visualize their future home with life-like visualizations.
- Cloud-based software for easy team collaboration.
- Thousands of customizable design elements that fit in container homes.
- Professional Presentation Materials: Impress clients with polished documents that showcase your ideas.
Ready to take your container home projects to the next level?