Easy-to-use software cuts your time to proposal from days to hours, so you can land more clients, faster.
Container house designs stand out for their uniqueness, but your designs help you land clients when they can visualize the unconventional fast.
General 3D software can trap you in a steep learning curve and long render times, so your proposal goes out late.
And late proposals bleed profit because time spent designing is time you are not selling or building.
That’s why you need the best container home design software for 2026.
In this guide, we’ll cover options from pro tools to budget-friendly options.
You’ll also see why Cedreo is the best choice for contractors and builders who need fast 2D plans, quick 3D visuals, and client-ready presentations.
Key Takeaways
- Cedreo is a top choice to create container home designs since it helps you create 2D plans, 3D renderings, and proposal documents faster, so you can send bids sooner.
- Pick software that builds clear floor plans and supports fast client approvals.
- Look for tools that handle limited space, multiple containers, and quick layout changes.
- Choose programs that make it easy to create photorealistic 3D visuals so clients can say yes sooner.
Why trust us? Here at Cedreo, we’ve got 20+ years of experience working with housing pros in the home design space. So we know what it takes for builders and designers to create projects that land them more clients!
See How You Can Create Complete Projects with Cedreo

Plans – Get site plans, 2D floor plans, electrical plans, cross sections and elevation views — with all the technical details you need for a comprehensive project overview.
3D Visualizations – Use interior and exterior 3D renderings as well as 3D floor plans to help clients understand the finished project.
Documentation – Manage all your visual documents in one place, so it’s easier to present and sell your projects.
No credit card required, no commitment
Why Software Matters for Container Home Designers
Check out these ways modern home design software helps your container home design business.
Speed Protects Profit
Fast drafting and fast rendering shorten your time-to-proposal, which helps you win more work.
- Reuse plan layouts when you build similar container home plans.
- Make changes in front of the client instead of scheduling another meeting.
- Generate visuals quickly so you can move to pricing and next steps.
Visuals Close Decisions

Client-facing visuals reduce confusion because clients can visualize the space instead of guessing.
- Show interior and exterior views, not just 2D container home plans.
- Use realistic materials to test design ideas like wood finishes and colors.
- Share images in a clean presentation so clients can pick and approve.
Avoid Steep Learning Curve
A steep learning curve slows your team down when you should be selling and building.
- Choose user-friendly tools that feel simple from day one.
- Look for training and support that helps you fix issues fast.
- Make sure your team can start designing in days, not months.
How to Choose the Best Software for Container Home Design
Before you pick design software, decide what you need to draw, share, and sell.
Use the checklist below to avoid tools that waste time or force you into a steep learning curve.
Container Home Design Tools
Why important: Container home designs are unique, so you need software that matches those unique needs.
What to look for:
- Easy resizing for rooms, cabinets, and furniture so you can customize layouts to fit a container’s specific dimensions.
- Easy way to add corrugated shapes to the walls to match the look of containers.
- Flat roof tools.
- Ability to add sustainability features common to container homes (like solar panels).
User-friendly Workflow
Why important: If the software feels slow, your whole design process slows down.
What to look for:
- Simple clicks for common actions.
- Clear menus that a builder can learn quickly.
- Templates or shortcuts for repeat tasks.
- Cloud access so you can work from any computer.
High Quality Visuals

Why important: Great 3D images help clients approve your design concepts faster.
What to look for:
- The ability to make 3D images with fast and with limited experience
- Realistic container details, like corrugated textures
- Day and night lighting settings.
- Interior and exterior views to explore.
Strong Support Options
Why important: Deadlines hit fast, so you need help without waiting days.
What to look for:
- Phone, chat, and email support.
- A help center with quick tutorials.
- Onboarding that speeds up team adoption.
- Clear answers from real humans.
Multi-container Planning
Why important: Unlike traditional homes, a container home uses boxes that must line up when you combine multiple containers.
What to look for:
- Copy, mirror, and reuse container home plans.
- Simple tools for multiple levels and stacked boxes.
- Accurate dimensions so rooms fit the available space.
Openings and Details

Why important: Windows, doors, and big openings drive layout, insulation, energy efficiency.
What to look for:
- Quick placement and editing for windows and doors.
- Easy changes to wall types, thickness, and materials.
- Clear dimensions, notes, and outlet/switch locations for construction teams.
- Elevations or cross sections for better clarity.
10 Best Container Home Design Software Solutions
Now that you know what you’re looking for, let’s take a quick look at 10 of the best options for designing shipping container homes.
We’ve divided these into two categories:
Software for pros: Software designed specifically for home design and building companies.
- Cedreo
- SketchUp
- AutoCAD
- Floorplanner
- RoomSketcher
- SmartDraw
Software for DIYers and students: Less powerful and often lacking enterprise features real businesses rely on.
- Live Home 3D
- Planner 5D
- Sweet Home 3D
- 3D ISBU ContainerHome3D
| Software | 2D Floor Plan Capabilities | Furnishing & Material Library | 3D Rendering Quality | Client Presentations | Learning Curve | Support Quality | Pricing |
| Cedreo | Advanced | Large | Excellent | Excellent | Easy | Excellent | $$ |
| SketchUp | Moderate | Large (with user-generated options) | Excellent (with add-ons) | Good | Steep | Average | $$ |
| AutoCAD | Advanced | Large | Good (with add-ons) | Basic | Steep | Excellent | $$$ |
| Floorplanner | Good | Large | Good | Good | Easy | Average | $$ |
| RoomSketcher | Good | Moderate | Good | Good | Easy | Average | $$ |
| SmartDraw | Advanced | Basic (2D symbols only) | None | Basic | Easy | Average | $ |
| Live Home 3D | Good | Moderate | Good | Good | Moderate | Average | $ |
| Planner 5D | Good | Large | Good | Good | Easy | Average | $$ |
| Sweet Home 3D | Good | Moderate | Basic | Basic | Moderate | Limited | $ |
| 3D ISBU ContainerHome3D | Basic | Basic | Basic | Basic | Easy | Limited | $ |
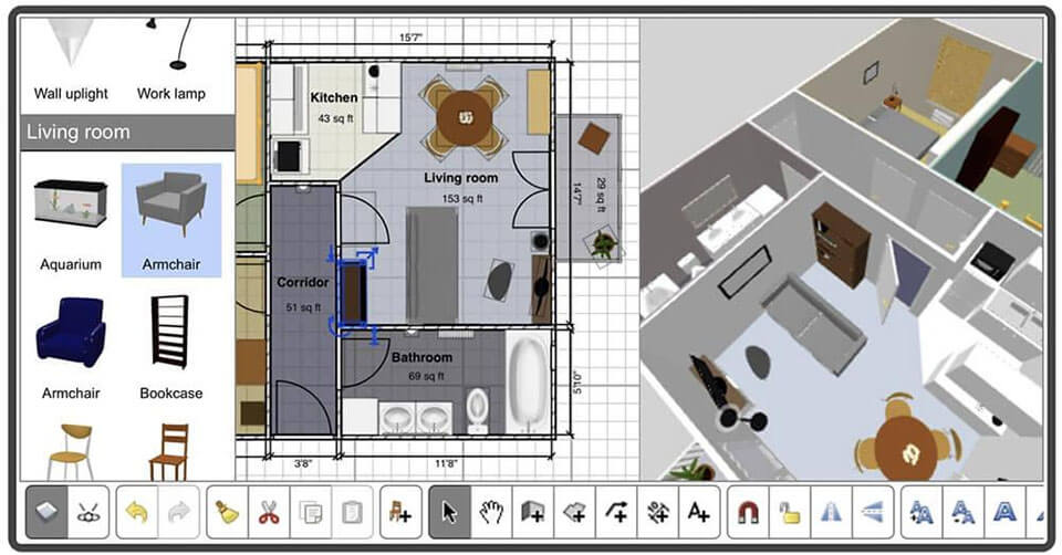
1. Cedreo
Best for: Builders and designers who want to shorten the time to proposal and land more jobs with high-quality visuals.

Cedreo is a cloud-based home design software built for residential construction pros who want a short design process.
You can produce professional 2D layouts and 3D floor plans, then turn them into client-ready proposal documents with your branding in as little as 2 hours.
Top features container home builders rely on:
- Adjustable sun orientation for realistic natural lighting effects inside and out.
- Cross sections and elevations to clearly explain structure and layout.
- Electrical plans with outlets, switches, and lighting shown clearly.
- Branded project presentations that combine 3D images, 2D plans, and custom annotations.
Ease of Use
- Drag-and-drop tools that most users learn quickly.
- One-click resizing to adjust the full project when the client changes the available space.
- Multi-level design tools when your container home includes lofts or multiple levels.
3D rendering quality
- Photorealistic interior and exterior 3D renderings in less than 5 minutes.
- Day and night settings with adjustable sun orientation and backgrounds.
- Saved viewpoints so you can compare design ideas side by side.
Furniture/Material library
- Over 8,500 furniture, fixtures, and decor items you can customize for container homes.
- Thousands of flooring, paint colors, and finishes with realistic textures.
- Corrugated materials for realistic container representations.
- A searchable catalog that helps you explore options for limited space layouts.
Support
- Help Center with tutorials available 24/7.
- Phone, email, and chat support during business hours.
- Dedicated Success Manager for Pro and Enterprise users, plus free training calls.
Pricing: $$
Free and premium pricing options for individuals and teams. Check current prices here.
2. SketchUp
Best for: Large teams with dedicated 3D modeling artists.

SketchUp is a flexible 3D modeling tool that works well for shipping container home design concepts.
It shines when you need custom shapes, fast massing studies, and detailed design ideas.
However to get detailed construction documentation, project presentations, and high-quality renderings, you need to add extensions, which can quickly add up in price.
Key features:
- Draw virtually anything.
- 3D Warehouse access for downloading models and objects.
- Scenes that save views and can animate a presentation.
- Import and export options for sharing models with other tools.
- An extension ecosystem for rendering, reporting, and productivity.
Pros:
- Great control for unusual layouts and custom architectural details.
- Huge community with lots of tutorials and add-ons.
- Strong concept and visualization tool when paired with a renderer.*
Cons:
- Steep learning curve for many housing pros.
- Extensions can add cost and setup time.
Pricing: $$
3. AutoCAD
Best for: Intricate drafting of custom shapes and designs.

AutoCAD is a long-time CAD standard for exact 2D drafting and documentation.
Choose it when you need tight control over dimensions, layers, annotations, and intricate design elements.
Similar to SketchUp, for polished 3D visuals, you’ll need to use a separate rendering or modeling tool.
Key features:
- Advanced 2D drafting, drawing, and annotation tools.
- Layer controls to organize plans by trade and scope.
- Blocks and dynamic blocks to reuse details and speed up edits.
- Data extraction and tables to pull drawing info from objects.
- Desktop, web, and mobile options for viewing and markups.
Pros:
- Excellent for exact, build-focused drawings.
- Strong for documentation on complex projects.
- Widely used in architecture and construction workflows.
Cons:
- Steep learning curve for teams without CAD experience.
- Not the fastest path to client-ready 3D presentations.
Pricing: $$$
4. Floorplanner
Best for: Fast interior proof-of-concept layouts.

Floorplanner is a web-based tool for creating floor plans and 3D visuals.
It is a quick way to test furniture placement inside a container house and share the result.
Its huge 3D library is a big strength for quick staging and concept work.
Key features:
- 2D editor for drawing rooms, walls, doors, and windows.
- A large 3D library for furnishing.
- 2D and 3D image exports with higher resolution on paid plans.
- Link sharing and public viewing options for client reviews.
- Export options such as PDF and CAD-style formats on upgraded project levels.
Pros:
- Easy to start and fast to sketch design ideas.
- Helpful for furnishing and visualizing limited space.
- Strong library for quick iterations.
Cons:
- Some pros want more control over construction-level details.
- High-end realism and advanced outputs can require upgrades.
Pricing: $$
5. Room Sketcher
Best for: Quick floor plan concepts.

RoomSketcher focuses on floor plans and 3D visualization for interior planning.
It helps clients visualize flow with 3D photos, 360 views, and Live 3D walkthroughs.
Some outputs require a Pro or Team plan and credits.
Key features:
- 2D floor plans with measurements, labels, and branding options.
- 3D floor plans and 3D photos for stronger visuals.
- Live 3D walkthroughs to explore the layout.
- 360 views for shareable room-level panoramas.
Pros:
- Straightforward workflow without a steep learning curve.
- Strong visual outputs for client communication.
- Works across devices with cloud project access.
Cons:
- Many premium outputs require upgrades and credits.
- Not built for detailed construction documents.
Pricing: $$
6. SmartDraw
Best for: Detailed 2D container plans and diagrams.

SmartDraw is a diagramming tool that includes floor plan templates and symbol libraries.
It works well when you need clean 2D container layouts, quick markups, or diagrams for crews.
It is not a 3D home design or rendering tool.
Key features:
- Residential and commercial floor plan templates to start fast.
- Wall drawing tools plus drag-and-drop doors and windows.
- Symbol libraries for furnishings and mechanical system (electrical, HVAC, plumbing) elements.
- Built-in dimension guides for more accurate layouts.
- Integrations with storage tools like OneDrive, Google Drive, and SharePoint.
Pros:
- Fast way to create neat 2D floor plans.
- Useful for scopes, diagrams, and quick communication.
- Integrations help teams store and share files where they already work.
Cons:
- No 3D floor plans or photorealistic visuals.
- Very limited for full home design and client presentations.
Pricing: $$
7. Live Home 3D
Best for: Virtual walkthroughs on mobile devices.

Live Home 3D offers 2D drafting and real-time 3D views for container home projects.
It supports video walkthroughs and detailed lighting controls for better visualization.
Some advanced exports and features depend on paid upgrades.
Key features:
- 2D and 3D design modes to switch between plan and model.
- Real-time 3D rendering plus video walkthrough creation.
- Import 3D models (and access models from Trimble 3D Warehouse).
- Export options for PDFs, images, and common 3D formats.
Pros:
- Strong visualization for the price.
- Helpful for exploring interior and exterior ideas in 3D.
- Runs on multiple devices and operating systems.
Cons:
- Some features and higher-quality exports require paid upgrades.
- Not focused on pro construction documents.
Pricing: $
8. Planner 5D
Best for: New interior designers exploring ideas.

Planner 5D is built for non-pro users who want to start experimenting with container design in 2D and 3D.
It supports interior and exterior concepts with a large catalog that includes landscape items.
However, if you need construction-level documentation, it can feel limiting.
Key features:
- Drag-and-drop design in both 2D and 3D modes.
- A large catalog of furniture, decor, and landscape features.
- Photo-realistic snapshots for sharing design concepts.
- Save and share projects across devices.
- Optional tools for importing custom 3D models on higher plans.
Pros:
- Easy to learn for new users.
- Fast way to test furniture and layout in limited space.
- Useful for early concepts before moving to pro software.
Cons:
- Limited plan-to-scale documentation for pros.
- Many best features sit behind paid plans.
Pricing: $$
9. Sweet Home 3D
Best for: Basic designs on a really tight budget.

Sweet Home 3D is an open-source tool for drawing floor plans while viewing the design in 3D.
You can customize sizes, textures, and layout details, then generate images or videos.
It is powerful for a free tool, but it’s definitely less polished than paid software.
Key features:
- Drag-and-drop doors and windows, with automatic wall openings.
- Furniture catalog plus the ability to resize and customize items.
- 2D plan view with a linked 3D visitor view.
- Photorealistic images and videos with adjustable lights and sun.
- Import blueprints, models, and textures, plus plug-ins to extend features.
Pros:
- Free to download and use, even for commercial work.
- Capable feature set for early design ideas.
- Good for testing furniture layouts in limited space.
Cons:
- Visual quality depends heavily on setup and user skill.
- Support is limited compared to paid tools.
- Additional product packs are paid.
Pricing: $
10. 3D ISBU Shipping Container Home Design Software
Best for: Container-specific exterior concepts

ContainerHome3D is a niche tool only made for shipping container home design concepts.
It focuses on arranging containers, then adding exterior details so you can visualize the overall look.
It is Windows desktop software and geared more toward concept exploration than full plan sets.
Key features:
- Place and arrange shipping containers to build concepts fast.
- Use accurate 20′ and 40′ container model types in common sizes.
- Stack and combine multiple containers to test massing.
- Add doors, windows, greenery, and exterior details.
- Import images and export visuals for sharing design ideas.
Pros:
- Built around shipping containers from the start.
- Fast way to explore exterior design ideas.
- Helpful for early concept layouts and visualization.
Cons:
- Windows-only and hardware needs can be a barrier.
- Limited for full home design documentation.
- 3D renderings are dated.
Pricing: $
Which Container Home Design Software is Right For You?
So which is the right container home design software for you? Make the right choice and you’ll save your business loads of time, money, and hassle.
More and more housing professionals are finding the right choice is Cedreo. With its intuitive toolset, powerful customization options, and pro-level renderings, no other program lets you do so much so fast.
So why not start using Cedreo today? With a FREE version, you’ve got nothing to lose.
Sign up now to see firsthand why Cedreo is the right choice for container home builders like you.
Container Home Design Software FAQs
For most builders, Cedreo is an excellent choice because it helps you easily design a container home with 2D plans, fast 3D visuals, and branded presentations that clients understand and approve faster.
More container home builders are switching to Cedreo because it shortens time-to-proposal and makes high quality designs easier to sell without needing heavy building information modeling workflows.
With traditional tools, a client-ready deck can take several days or more once you factor in model cleanup, add-ons, and hours of rendering.
With Cedreo, you can build the layout and assemble branded project presentations in as little as 2 hours, and your 3D renderings generate in less than 5 minutes.