Planos de Construcción
Sea cual sea tu proyecto, todo empieza con los planos de construcción.
Crea planos de construcción de viviendas completos online con facilidad. En horas, no en días
Añade muebles y un diseño personalizado en 3D
Genera render 3D realistas para sorprender a los clientes

Dibuja Planos de Construcción en Minutos
No importa el tipo de proyecto, todo empieza con los planos de construcción en 2D y 3D. Estos planos pueden ayudarte a visualizar cada elemento de tu espacio.
Los planos de planta guían el proceso de construcción y mantienen el producto final como referencia de todas las decisiones de diseño y construcción.
Exploremos los tipos de planos 2D y 3D y lo que significan para tu próximo proyecto.
Más información sobre el programa para hacer planosPlanos de Construcción en 2D
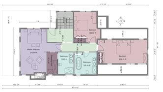
- Planos en blanco y negro
- Planos con código de colores
- Codificación por colores con tipos de pared
- Planos 2D con mobiliario
- Abreviaturas y símbolos de planos de construcción 2D
Los planos 2D son la base de cualquier diseño. A partir de los planos de planta en 2D, puedes hacerte una idea clara de la distribución general, las instalaciones, las necesidades de espacio y mucho más.
Más información sobre los planos de planta 2D

Planos de Construcción en 3D
- Vista aérea con detalles exteriores
- Vista aérea sin fondo
- Planos isométricos 3D
- Planos comerciales
- Planos 3D de una habitación
- Planos para cualquier tipo de vivienda
No hay nada mejor que un plano de construcción completo en 3D. Es una forma fácil de obtener una perspectiva realista de lo que estás construyendo. Añade fácilmente materiales naturales y elementos como el diseño de los muebles para obtener una visión más clara de tu proyecto.
Más información sobre planos 3DRenders de Edificios de Calidad Fotográfica
¿Listo para llevar tus ideas del papel a la realidad? Con la tecnología de renderizado de calidad fotográfica, puedes mostrar a tus clientes una versión tridimensional completa y realista del proyecto. Ajusta la iluminación, elige tu propia perspectiva y crea fácilmente diseños realistas con la potente tecnología de render de Cedreo.
Más información sobre los render 3D
6 Aspectos a Tener en Cuenta al Diseñar Planos de Construcción de Casas
La creación de un plano de construcción de vivienda es el paso fundamental a partir del cual se construye la totalidad de un proyecto, por lo que es esencial dominar este aspecto de la construcción. A continuación encontrarás algunas consideraciones comunes que te ayudarán a sacar el máximo partido del proceso de planificación.
Estilo de Vida
Tu casa refleja tu forma de vivir. Piensa bien cómo vas a utilizar tu casa. ¿Necesitas una cocina grande para recibir invitados o una planta abierta para mejorar la visibilidad?
Necesidades de Espacio
Cuando crees el plano de un edificio, ten siempre en cuenta tus necesidades de espacio. ¿Necesitas mucho espacio para una familia o espacio para una pareja joven?
Ubicación de las Habitaciones
Piensa bien la ubicación de ciertas habitaciones. Por ejemplo, no querrías un cuarto de baño justo al lado de la cocina.
Costes
Aunque todas estas características adicionales están bien, no te olvides de tu presupuesto. Los cambios en un plano pueden encarecer el proyecto rápidamente.
Flexibilidad
Lo que ahora funciona para tu plano puede que no lo haga en un futuro próximo. Si puedes, intenta trabajar con cierta flexibilidad para que tu casa pueda evolucionar con tu estilo de vida.
Accesibilidad
La accesibilidad es increíblemente importante, sobre todo si estás construyendo un plano para alguien mayor o que necesita ayuda especial.
Ejemplos de Planos de Construcción
Utilizando un programa para hacer planos, puedes crear fácilmente planos de construcción de viviendas en 2D y 3D que te ayuden a visualizar tu proyecto sin necesidad de aprender complicados programas de CAD.
Verás que todos los proyectos, desde una simple remodelación hasta una reforma completa, requieren varios tipos de planos de construcción de casas a lo largo del periodo de ejecución del proyecto. A continuación encontrarás algunos ejemplos de planos creados con las últimas aplicaciones de diseño de planos.

Los planos de planta abierta añaden un toque moderno a la vez que maximizan el espacio y potencian las líneas visuales claras.

Los planos de una sola planta ayudan a crear el espacio en un solo nivel.

Los planos de planta de rancho convencionales sitúan todos los dormitorios en un ala de la casa.

Los planos de construcción estilo granja presentan una suite principal en la primera planta con otros dormitorios en el piso superior.

Los planos de edificios de dos plantas sitúan el dormitorio principal en el piso superior.

Los planos de planta tipo granero, son una versión moderna de un clásico americano.

Los planos de construcción tipo Charleston toman todo el encanto de la arquitectura sureña y le añaden algunos toques modernos.

Los planos modernos de mediados de siglo son la elección perfecta para quienes buscan sorprender con estilo y diseño.
Preguntas Frecuentes Sobre Planos de Construcción
Redactar los planos de construcción de una casa puede parecer un proceso intimidatorio. Al fin y al cabo, estos diseños son la base de cualquier buen proyecto de construcción. Con la construcción de viviendas nuevas, es imprescindible que afrontes el proceso de planificación y diseño con las herramientas adecuadas. He aquí algunas preguntas frecuentes sobre el proceso de planificación.
¿Cómo se pueden calcular los costes totales del proyecto?
Aunque hay muchas formas de calcular el coste de un proyecto, algunas son más eficaces que otras. Si ya estás planificando tu plano con un software como Cedreo, puedes utilizar fácilmente la función de estimación de costes para obtener una visión general del presupuesto del proyecto.
¿Qué tipos de planos de construcción necesitas?
Durante el transcurso de un proyecto, necesitarás bastantes tipos de planos de construcción. Aunque los planos en 2D son una buena base, con los planos de corte y fachadas, los planos en 3D y los render pueden ayudarte a tener una perspectiva más completa de tu proyecto.
¿Deberías utilizar un software para hacer planos de construcción?
Utilizar un potente programa para hacer planos, como Cedreo, es una forma estupenda de agilizar el proceso de planificación y diseño. En la mayoría de los casos, puedes ahorrarte horas de trabajo durante estas fases iniciales del proyecto.
¿Cualquiera puede utilizar un software de planos?
Sí. La mayoría de los programas de diseño de planos cuentan con módulos de diseño fáciles de usar. Aunque las plataformas diseñan estas herramientas para profesionales como contratistas y diseñadores de interiores, también pueden utilizarse por decoradores aficionados e incluso por aficionados al bricolaje.