Planos de Casas
Aprende a crear planos de casas, los diferentes tipos y ejemplos, así como las claves al diseñarlos.
¿Qué es el Plano de Una Casa?
El plano de una casa es un dibujo que muestra la distribución del espacio de una casa desde arriba. Incluye elementos clave como puertas, ventanas y escaleras, así como el tamaño de cada dormitorio. También muestra los nombres y superficie de las habitaciones, así como las medidas entre paredes.


La Importancia de los Planos de Casas
A la hora de comprar o construir una casa, el plano de planta es uno de los aspectos más importantes a tener en cuenta. Un buen plano hará que la casa resulte acogedora y funcional, mientras que uno malo puede hacer que resulte estrecha e incómoda.
El plano de planta ayuda a los clientes a entender tu visión y al constructor a tener una idea más clara del proyecto antes de que comience la construcción. La creación de un plano de planta detallado ayuda a evitar malentendidos con los clientes y cerrar el presupuesto, la llave para cerrar acuerdos rápidamente.
Tipos de Planos de Casa
Hay tres modelos principales en arquitectura con los que diseñar el plano de una casa y transmitir la información e ideas que los compradores de viviendas quieren saber: planos de casas en 2D, en 3D y render 3D.
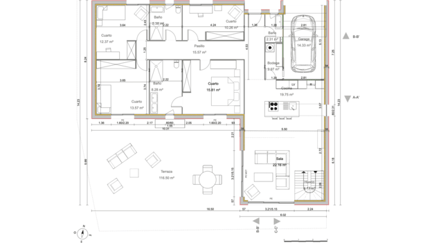
Planos de Casa 2D
El plano de planta 2D es una representación básica y plana de la distribución de la vivienda sin perspectiva, que muestra la información técnica y las medidas de los espacios. Esta vista debe presentarse junto al plano en 3D para ayudar a los clientes a imaginarse las posibilidades de su futura casa, piso u oficina.

Planos de Casa 3D
Permiten ver la distribución completa de la casa, incluidos los dormitorios, comedor, baños, cocina, así como muebles y decoración. Esta vista también es útil para entender las características exteriores de la parcela. Por ejemplo, las terrazas, los jardines, los accesos y entradas de vehículos o un garage. El plano en 3D es la forma más atractiva de mostrar imágenes del proyecto de vivienda. Gracias a él, tendrás más y mejores argumentos de venta con tu cliente.

Planos de Casas 3D en Vivo
El render 3D te permite ver la casa o piso como si ya estuvieran construidos, ofreciendo a los clientes una visita virtual del proyecto con una perspectiva en primera persona. Este recorrido virtual te permite resaltar detalles concretos de las habitaciones, distribución o incluso la fachada y cambiar el punto de vista mientras hablas del proyecto sin necesidad de utilizar AutoCAD u otros complicados programas.

6 Claves Para Crear el Plano de Una Casa
La planificación eficaz de un proyecto, tanto de nueva construcción como de reforma, requiere que los profesionales de la vivienda tengan un conocimiento global y detallado de las necesidades de los clientes para proponerles la mejor distribución de la casa. El plano de planta debe ajustarse a las necesidades básicas, como la cantidad de dormitorios y baños, número de plantas, un aprovechamiento del espacio lógico y un equilibrio arquitectónico estético. Todo sujeto a un presupuesto limitado.
Dibujo
El proceso de diseño de una vivienda es único para cada cliente. Es importante tener en cuenta las necesidades y deseos del cliente, así como la funcionalidad del espacio. Al crear un plano de planta que se adapte específicamente al cliente, seguro que crearás un espacio perfecto para él. Esto hará que esté satisfecho con el resultado y que, probablemente, vuelva a trabajar contigo en futuros proyectos.
Tamaño
A la hora de dimensionar la casa y de pensar en el tamaño de las habitaciones, es importante tener en cuenta el mobiliario existente del cliente, el número de miembros de la familia y cómo piensa utilizar determinados espacios. El tamaño total de la casa es uno de los factores más importantes para los clientes, al igual que las medidas de los dormitorios y otras estancias, como cocinas, comedor o baños.
Estilo
Al diseñar el plano de una casa, es importante entender el estilo de vida de tu cliente. Así te aseguras de crear una vivienda que funcione para él y su familia y satisfaga sus necesidades.
Por ejemplo, si tu cliente trabaja desde casa, es posible que necesite una zona de oficina con múltiples tomas de corriente y donde no sea molestado cuando tenga reuniones de empresa.
Presupuesto
El presupuesto de la construcción de una casa puede variar considerablemente en función de los acabados y los materiales utilizados.
Los armarios a medida, los grandes ventanales y los acabados de alta gama en la cocina, comedor o dormitorios pueden aumentar el coste del proyecto.
Así que puedes crear diferentes versiones de tu plano de planta para ayudar a los clientes a entender cómo los materiales y los elementos de diseño pueden afectar al presupuesto total.
Versatilidad
Es importante crear espacios que puedan ser usados para un propósito diferente cuando sea necesario.
Ejemplo: Un dormitorio de invitados que pueda convertirse rápidamente en una guardería, un estudio que pueda servir de oficina, un garage con gimnasio o una casa que pueda crecer con su familia.
El diseño de la casa debe tener en cuenta la posibilidad de futuros cambios.
Sostenibilidad
La sostenibilidad no solo consiste en salvar el medio ambiente, sino también en ahorrar dinero. Al crear un hogar sostenible, el cliente puede reducir su huella de carbono y ahorrar en sus facturas de gas, agua o electricidad.
Hay varias maneras de hacer que una casa sea más sostenible. Desde la instalación de electrodomésticos de bajo consumo hasta el uso de luz y ventilación naturales. Si tu cliente está interesado en la sostenibilidad, asegúrate de incorporar estas características en el plano.
Ejemplos de Planos de Casas
Puedes diseñar planos de casas, apartamentos y locales comerciales en 2D, con medidas y 3D con formas y tamaños únicos para presentar a tus clientes. Ver más ejemplos en nuestra página de inspiración.
Componentes Comunes del Plano de Una Casa
Existen múltiples opciones para personalizar el plano de una casa e identificar rápidamente las diferentes habitaciones, los muebles, las aberturas de los tabiques y mucho más. Estos elementos son especialmente útiles para los contratistas o empresas de reformas que trabajan en proyectos de construcción de viviendas.

Paredes
Suelen representarse en un plano con una línea continua. Esta línea puede indicar la ubicación de una pared interior, una fachada o un tabique impermeable.

Puertas
Los arcos de las puertas indican la orientación de la apertura (dentro o fuera de la habitación), así como la dirección, que se muestra con la línea recta. Las puertas correderas están representadas por 2 rectángulos.

Ventanas
Los arcos de las ventanas indican la orientación de la apertura, de la misma manera que las puertas para ventanas francesas, las ventanas colgadas o panorámicas se representan con un rectángulo.

Escaleras
Las escaleras están representadas por un rectángulo con líneas paralelas para mostrar la zona de escalones. La flecha muestra la dirección de las escaleras, de abajo hacia arriba.

Muebles
Hay varios símbolos de muebles disponibles para definir el propósito de cada habitación en un plano de casas 2D.

Dimensiones
Puedes ocultar las medidas de planos de casas simplificadas y agregar otras nuevas según sea necesario.
Cómo Crear el Plano de Una Casa
Con Cedreo, diseñar el plano de planta de una casa es rápido y fácil. Simplemente, sigue los pasos a continuación.
Importa un Plano de Planta
Si ya tienes un plano de planta, puedes importar una versión escalable en formato JPEG o PNG y utilizarla como capa para trazar las paredes. Una vez importado el plano, puedes recrearlo fácilmente, incluyendo las medidas de la parcela y la colocación de puertas y ventanas. Luego, puedes cambiarlo girando sobre su eje vertical u horizontal con un solo clic para modificar su orientación en la pantalla.

Dibujar el Plano
Cuando dibujas planos de casas desde cero en Cedreo, comienzas con los muros de carga y luego agregas las particiones interiores después de seleccionar el espesor de losa y la altura bajo techo.
Esto es fácil con la cuadrícula para guiarlo, mientras que el modo de dibujos de planos de casas continuo le permite crear las esquinas del diseño de la casa haciendo clic con el botón izquierdo donde lo necesite.

Dibuja el Plano de La Casa
Cuando dibujas planos de casas desde cero en Cedreo, comienzas con los muros de carga y luego agregas las particiones interiores después de seleccionar el espesor de los tabiques y la altura bajo techo para delimitar cada zona.
Esto es fácil con la cuadrícula para guiarlo, mientras que el modo de diseño de planos de casas continuo te permite crear las esquinas del diseño de la casa haciendo clic con el botón izquierdo donde lo necesites.

Dibuja el Diseño Exterior
Una vez que hayas creado la planta baja, puedes agregar un sótano o un nivel superior con solo dos clics. Las paredes exteriores de la primera planta se duplican automáticamente.
En los planos de varias plantas, puede ocultar o mostrar los niveles superiores e inferiores para ver dónde están las particiones en cada nivel. Gracias a la ventana de vista 3D, puedes ver cómo el diseño de la casa toma forma en 3D mientras dibujas en 2D.

Medir Las Medidas Del Plano de La Casa
Mueve un tabique o amplía y reduce el diseño general de la casa en forma vertical u horizontal con un clic, las otras paredes se extenderán o reducirán automáticamente para mantener los mismos ángulos.
Dependiendo de las preferencias de perfil de tu cuenta, las medidas se mostrarán en unidades métricas o imperiales. El cálculo de la superficie se actualiza automáticamente en el plano de planta y en la tabla de recapitulación, para que puedas ver fácilmente qué tamaño tiene cada habitación.
Se trata de una función muy útil a la hora de planificar la reforma o el rediseño de cualquier casa o piso.
Más información sobre planos de casas con medidas
Amueblar y Decorar
¡Ahora es el momento de amueblar y decorar la casa!
Con una biblioteca 3D de más de 7000 elementos personalizables entre los que elegir, seguro que encuentras las piezas perfectas para el estilo de tu cliente. Solo tienes que hacer clic en las categorías de productos y pulsar en la habitación o sala en la que deseas aplicar un artículo.
Añadir muebles y decoración es fácil con el asistente de ventanas; solo tienes que seleccionar las piezas que deseas y hacer clic donde quieres que vayan. También puedes girarlas para conseguir la vista perfecta y personalizar los colores para que coincidan con el estilo del cliente.
Con tanta variedad de elementos entre los que elegir, ¡seguro que creas una casa bonita y con estilo para tu cliente!

Genere Planos de Casa en 2D o 3D
Solo se necesitan dos clics para descargar el plano de planta 2D en blanco y negro o en color a escala en formato PDF, incluida la superficie de cada estancia, los símbolos principales de los muebles y los tipos de muro.
Genera imágenes 3D configurando el ángulo de la cámara Cedreo para obtener la vista superior deseada del diseño de la casa. Genera la perspectiva isométrica en HD (1280×720) o Full HD (1920×1080).
En tan solo 5 minutos las tendrás listas para descargar. ¡Se acabaron las largas horas de trabajo en AutoCAD!

Preguntas Frecuentes Sobre el Diseño de Planos de Casas
¿Cuál es el software más utilizado para hacer planos de casa?
El mejor software de planos permite a los profesionales de la vivienda dibujar el diseño de una casa, amueblar el interior y el exterior y generar render en 3D en menos de 2 horas. Busca funciones intuitivas y que te permitan ahorrar tiempo para dibujar un plano de planta rápidamente.
¿Quién usa los planos de casas?
Los constructores, empresas de reformas, diseñadores de interiores, promotores inmobiliarios, arquitectos y diseñadores de viviendas necesitan los planos de la casa para presentar un proyecto de vivienda a los clientes potenciales. Tanto si se trata de una nueva construcción como de una reforma, es una forma básica de mostrar el diseño general y las posiciones de las recámaras y ayudar a los clientes a entender su visión.
¿Qué es un plano de casas cerrado?
Un plano cerrado es un diseño de plano de una casa más tradicional que tiene habitaciones definidas encerradas por paredes. Esto le permite atribuir un único propósito a cada habitación, lo que puede ser útil para organizar su casa.
Por ejemplo, puede tener una sala de estar en la que recibe a sus invitados, una cocina en la que cocina y come, y un dormitorio en el que duerme. Tener estos espacios diferenciados puede ser especialmente útil si tienes una casa pequeña, ya que puede hacer que el lugar parezca más organizado y eficiente.
¿Son los planos de una casa 3D mejores que los planos de casa 2D?
Los planos de planta en 3D tienen un objetivo diferente al de los 2D.
Los planos de casas en 2D son ideales para mostrar más detalles técnicos, como las medidas de los muros y tabiques, la sala de estar y las ubicaciones y dirección de apertura de puertas y ventanas. Además, se pueden descargar e imprimir a escala.
Los planos en 3D pueden ofrecer una visión más realista de la distribución de la casa o piso, lo que puede ser útil para los posibles compradores.
Esto se debe a que en un plano en 3D, el salón, los muebles y otros elementos de la estancia se representan de forma realista, lo que permite a los clientes hacerse una mejor idea de cómo será el espacio.














