Los dibujos de construcción residencial son el núcleo de cualquier proyecto de construcción de viviendas. Proporcionan los detalles necesarios para obtener los permisos de construcción y edificar la vivienda.
Sin embargo, cuando se trata de posibles compradores, estos pueden resultar abrumadores. Las empresas a menudo ofrecen 30 páginas de dibujos arquitectónicos que más que entusiasmar, confunden a los potenciales clientes.
A continuación, te mostramos cómo puedes usar tu dibujo de construcción para realizar más ventas y convencer a tus clientes sobre tus proyectos residenciales.
¿Qué deben incluir los dibujos de construcciones?
Existen muchos tipos de planos de construcción que constructores de viviendas, remodeladores y diseñadores pueden utilizar para sus proyectos residenciales. Sin embargo, los adecuados proporcionarán a los clientes los detalles que necesitan para comprender cómo será su hogar. Estos son algunos de los planos esenciales que los clientes querrán ver.

Planos de sitio
Estos dibujos a gran escala muestran el alcance completo del terreno. A menudo confundidos con los planos de casas, los planos de sitio muestran todas las estructuras y su ubicación en un terreno.Los planos de sitio son esenciales porque transmiten una visión clara de cómo las estructuras se acomodan en conjunto en el terreno. Un plano de sitio comienza con los límites de la propiedad y las medidas exactas entre la vivienda y el paisaje. Muestra la ubicación ideal para elementos clave, como un jardín, piscina o entrada de vehículos, así como los materiales que se pueden utilizar.

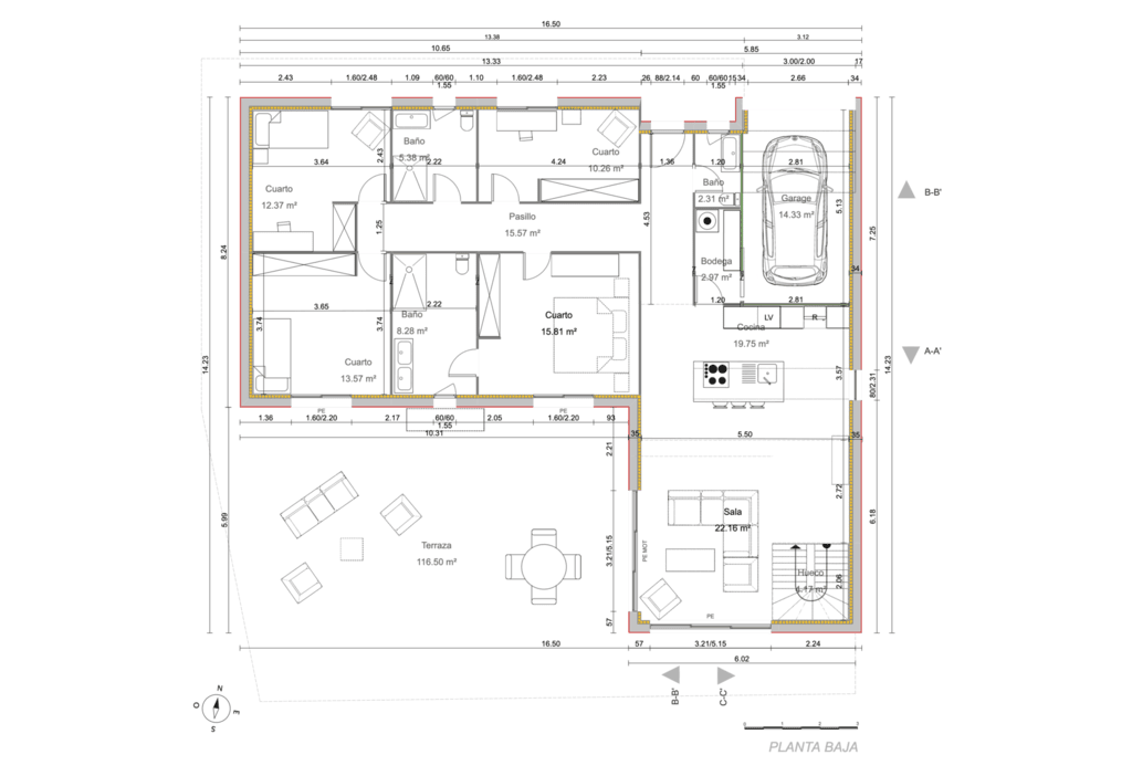
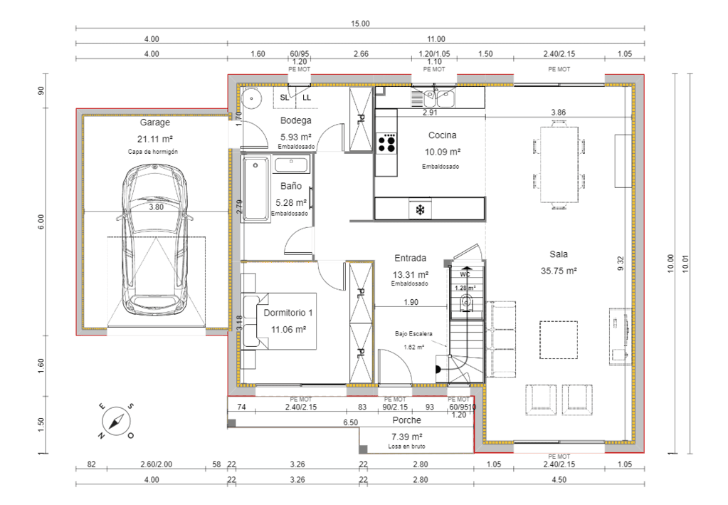
Planos de planta
Estos planos ofrecen una vista horizontal desde arriba del edificio, mostrando el diseño completo de las habitaciones en su interior. Permiten a los diseñadores mostrar las características y detalles de la estructura. Por ejemplo, los planos de planta ilustran el grosor y la altura de las paredes, techos falsos.
Ya sea que se trate de reformar una cocina, construir una vivienda o ilustrar un espacio de trabajo temporal, los planos de planta pueden mostrar a los clientes cómo será un edificio.

Elevaciones
Las elevaciones interiores y exteriores son proyecciones ortográficas que muestran toda la longitud del edificio. Estas ofrecen una perspectiva crucial de la vivienda desde cualquier ángulo o lado.
Las fachadas muestran la altura total del edificio, la altura de piso a piso y cualquier apertura en las paredes, como puertas o ventanas, así como los materiales en la superficie exterior.
Las elevaciones interiores muestran los detalles de la habitación, que incluyen las paredes. Estas reflejan la altura total de la habitación, aperturas en las paredes, como puertas y ventanas, acabados, armarios empotrados y cualquier vestidor.

Tablas de superficies
El diseño y la distribución de la vivienda son esenciales para venderla. Las tablas de superficies permiten a los clientes visualizar mejor las habitaciones y su ubicación en la vivienda. No solo podrán ver dónde se encuentran las habitaciones, sino también identificar, por ejemplo, la ubicación del garaje y las terrazas en su hogar.

Planos eléctricos
Los planos eléctricos describen las características eléctricas fundamentales de la estructura. Estos planos ilustran los puntos de luz, detectores de humo y monóxido de carbono, enchufes, interruptores y dispositivos requeridos por normativa.
Los clientes contarán con una representación visual del sistema eléctrico y circuitos para personalizar según su estilo de vida o requerimientos específicos.
Materiales
Aunque tu cliente pueda comprender el diseño general de las estructuras y empezar a entender qué funcionará en qué lugar, los materiales ayudan a completar la visión del proyecto finalizado. Ya sea que vayas a trabajar con madera natural o pintada, estuco, ladrillo o metal, una ilustración que incluya los materiales y sus formas ayudará a complementar la visión global del espacio.
Techos
Los planos de techos ofrecen información detallada y precisa sobre los elementos estructurales para enmarcar el techo. Esto permite al constructor decidir la ubicación, número y tamaño de los elementos estructurales necesarios. También muestran los voladizos, canaletas, ventilaciones y conectores. Todo esto ayuda a los clientes a entender cómo la cubierta influirá en el exterior de la vivienda.

¿Cómo pueden los dibujos de construcción crear negocio?
Estos aspectos de los dibujos residenciales desempeñan un papel crucial y son la base de los diseños que el cliente verá. También son fundamentales para crear representaciones en 2D y 3D que brindan a los clientes la claridad y el entusiasmo que te ayudan a cerrar el acuerdo.
Planos 2D
Utilizando tus dibujos residenciales, puedes crear un plano claro y abierto que sea fácilmente personalizable para cada cliente. Estos planos en 2D incluyen:
- Codificación por colores. La codificación por colores garantiza que tus clientes puedan ver y entender dónde están ubicadas las habitaciones, estructuras y áreas verdes.
- Aperturas de ventanas y puertas. Muchos clientes buscan espacios abiertos y luminosos. Mostrar las ventanas y puertas proporciona mayor claridad y asegura que puedan visualizar cómo se distribuyen las habitaciones y la luminosidad en ellas.

Renders 3D
Las representaciones en 3D toman la esencia básica de los dibujos en 2D y la complejidad de los planos de construcción residencial, transformándolos en un recorrido realista por la estructura. No solo los clientes ganarán claridad y entenderán dónde va cada cosa, sino que también podrán imaginarse dentro del espacio.
La calidad realista de los renders en 3D los coloca en un estado de ánimo más propenso a comprar.
- Planos completamente amueblados. Una habitación vacía puede representar infinitas posibilidades para algunos clientes, pero muchos otros necesitan un poco de ayuda para imaginar. Los planos amueblados les brindan un mejor entendimiento del diseño y les hace sentir como si ya vivieran allí. Con detalles de mobiliario realistas, tus clientes se enamorarán aún más del espacio y comenzarán a visualizarse en la casa.

- Detalles exteriores. Los clientes no solo tendrán una idea de las habitaciones, sino también de la estructura exterior. Atráelos con una arquitectura única y los detalles del exterior. Los renders 3D ofrecen una visión de los detalles exteriores que los planos residenciales no pueden mostrar.
- Orientación solar. ¿Llena el sol de la tarde la casa con luz? ¿La luz matutina ilumina el jardín exterior de manera perfecta? La orientación solar ayuda a destacar las estructuras únicas de tu edificio y le da al hogar una sensación más realista.

Cómo elegir un programa para tu dibujo de construcción residencial
El programa juega un papel fundamental en dar vida a los planos de construcción residencial y en vender el sueño de la vivienda a tus clientes. Sin embargo, no todos son iguales y algunos ofrecen más ventajas. Algunos factores a considerar son:
Facilidad de uso
Un programa de diseño complicado requiere tiempo para aprender y resulta frustrante para muchos usuarios. En su lugar, invierte en herramientas específicamente diseñadas para la creación de dibujos y planos.
Almacenamiento
Los programas de diseño más antiguos a menudo requieren una gran cantidad de espacio en el disco duro y memoria, lo que los hace más lentos y limitados a portátiles y ordenadores de escritorio. Por otro lado, el almacenamiento en la nube permite que el programa funcione más rápido y permite a los usuarios acceder a los proyectos en el terreno y donde lo necesiten.
Escalabilidad
La mayoría de las empresas experimentan etapas de expansión y momentos de estancamiento. Con diferentes niveles de servicio, los usuarios pueden aumentar o disminuir según sus necesidades. Si tienen una gran cantidad de proyectos, su programa puede manejar la carga adicional, pero también pueden reducir la cobertura en épocas más bajas.
Características
Lo que obtienes por el coste del programa a veces es engañoso. Algunos programas de diseño requieren complementos para renderizar en 3D o para acceder a ciertos elementos de diseño. Busca programas que incluyan estas características en el precio.
Soporte
Aprender a usar un nuevo programa y manejar nuevos proyectos requiere cierta ayuda. Asegúrate de que el programa en el que inviertas ofrezca soporte y tutoriales que te muestren cómo aprovechar al máximo tu nuevo programa.
Desarrollo continuo
El diseño de viviendas no es un proceso estático ni estancado, y los clientes buscan diseños vanguardistas. Tu programa debería estar al día con los cambios. Elige uno que actualice regularmente su librería de imágenes y acepte peticiones de nuevas características de los clientes.
Calidad de imagen
La calidad de las imágenes es un argumento de venta vital para los clientes. Las representaciones en 3D son más efectivas cuando son de alta calidad. Además, puedes usar estas representaciones en tus materiales de marketing y en tu sitio web para atraer a posibles clientes. Encuentra un programa que ofrezca imágenes de alta calidad que convencen.

Compartir archivos
Permite que tus clientes accedan a los diseños de sus viviendas desde cualquier lugar o que se los lleven a casa. Asegúrate de que tu programa facilite la descarga y poder compartir tus dibujos y renders.
Prueba gratuita
Encontrar el programa adecuado puede llevar tiempo antes de invertir en el perfecto para ti. Opta por una plataforma que ofrezca una prueba gratuita, así podrás determinar si se adapta a tus necesidades antes de decidir.
Vende más casas con un programa de diseño de casas: reflexiones finales
Tu programa de diseño de viviendas no sólo facilita y agiliza la renderización. Es esencial para vender viviendas y hacer que los clientes se entusiasmen con lo que puedes ofrecerles. Transforma dibujos en construcción complejos en una visión realista de lo que recibirán.
Sin embargo, no todos los programas de diseño ofrecen las mismas ventajas a los usuarios. Cedreo cuenta con todas las características que los diseñadores, reformadores y constructores de viviendas necesitan para crear planos e impresionar a los clientes.
¿Quieres ver cómo puedes vender con un programa de diseño de viviendas? Prueba nuestra demo gratuita hoy para comenzar.