Documentos de Presentación de Proyectos
Diseña, personaliza y ahorra tiempo creando tus documentos de presentación
Documentos de Presentación 100% Personalizados y Siempre Actualizados
Nunca ha sido tan fácil presentar proyectos completos y sin errores con los colores de tu marca.
Se más eficiente
Gestiona todos tus documentos visuales (planos de planta, planos de corte y fachadas, planos de sitio, planos de cubiertas y renders 3D) y la presentación de tus anteproyectos en un solo lugar. Mejora tu organización y ahorra tiempo. Colabora con tu equipo de manera más eficiente compartiendo proyectos.

Crea documentos que conecten con tu marca
Importa tu logotipo, gráficos, fotos y anotaciones, y personaliza el diseño con tus colores corporativos para obtener borradores de anteproyecto de alta calidad.

Evita errores
Cada vez que modificas los planos o la plantilla del proyecto, los gráficos insertados en tus documentos se actualizan automáticamente. No es necesario sustituirlos manualmente. Evita errores y mantén tus presentaciones siempre actualizadas.

Crea tus Gráficos
Aprovecha un único paquete de software completo para dibujar todos los elementos gráficos que necesitas para las presentaciones de tus proyectos.
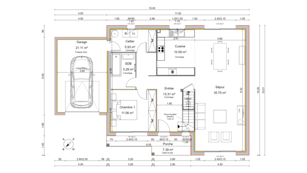
Dibuja fácilmente planos de planta detallados, planos de sitio y planos de corte y fachadas. Importa planos para empezar de forma rápida, y colabora con tu equipo compartiendo tus proyectos. Genera render 3D de calidad fotográfica en sólo unos minutos, y benefíciate de todos los elementos gráficos necesarios para tus anteproyectos.

Diseña los Documentos de Presentación de tus Anteproyectos
Todos tus gráficos están almacenados en un solo lugar. Añádelos a un documento antes de maquetarlos: es fácil y sencillo.
- 1 proyecto, varios documentos: crea tantos documentos de presentación como necesites para un solo proyecto.
- Una biblioteca de elementos gráficos para cada proyecto: encuentra todos tus planos y vistas 3D en la biblioteca de proyectos, listos para integrarlos en tus documentos a la escala deseada. Los planos se actualizan en tiempo real cada vez que modificas el trazado, o los materiales.
- Importa cualquier tipo de imagen: completa tu presentación con las imágenes necesarias para tus proyectos.

Personaliza tus Documentos
Crea documentos con los colores de tu marca, para presentaciones de alta calidad.
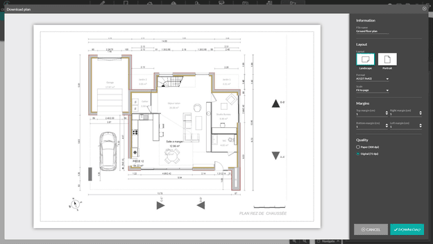
- Establece parámetros con facilidad: ajusta la orientación del documento, el formato y los márgenes de impresión.
- Redacta presentaciones que conecten con tu marca: mueve y modifica imágenes, inserta tu logotipo, crea un bloque de título, elige repetirlo en todas las páginas y ajusta los colores de tu marca.
- Haz que tus documentos sean aún más precisos: añade zonas de texto, líneas, flechas y formas, y personalízalas según tus colores.

Descarga Documentos a Escala
Gestiona fácilmente la escala de los planos insertados en tus documentos de presentación en PDF, ¡para que no tengas que preocuparte al imprimir!
- Define la escala de tus planos: elige la escala deseada para cada plano que añadas a tu documento de presentación.
- Añade una leyenda: cuando añadas un plano a tu documento, especifícalo añadiendo su escala.
- Descargar: Descarga los documentos de presentación de tu proyecto en formato PDF.

Funciones Que Ahorran Tiempo Mientras Generas Documentos de Calidad
Céntrate en tareas de valor añadido y ahorra tiempo creando documentos de presentación de proyectos
Texto y Anotaciones
Áreas de texto personalizables que pueden resaltarse con flechas, líneas y otras formas.
Magnetismo
Movimiento y posicionamiento precisos y sencillos de las partes gráficas dentro del documento.
Planos a Escala
Personalización de la escala para cada plano añadido al documento.
Importa Imágenes
Importa imágenes o fotos para añadirlas a los documentos (plano del solar o mapa catastral, por ejemplo)
Diseño Personalizado
Personaliza los colores utilizados en el documento, los tipos de letra y añade tu logotipo.
Parámetros de Documento
Elige la orientación (horizontal o vertical), el formato (A3 o A4) y los márgenes de impresión.
Actualizaciones Automáticas
Al modificar un plano se actualizarán automáticamente y en tiempo real los gráficos insertados en el documento.
Plantillas de Páginas
Se pueden crear elementos gráficos personalizados para mostrarlos en todas las páginas del documento (bloque de título, logotipo, etc.)
Muévete Más Rápido Combinando Estas Funciones
¡Ve más lejos! Cedreo ofrece mucho más que el diseño de documentos. Descubre qué más puedes hacer.

Planos 2D
Crea planos de planta completos y precisos para tus proyectos de construcción o reformas.

Tablas de Superfície
Genera automáticamente tablas de superficies para tus proyectos.

Planos de Corte
Crea secciones transversales con un solo clic, detallándolos con cotas y anotaciones.

Planos de Fachadas
Selecciona la fachada correspondiente y haz clic. ¡Es un juego de niños!

Render 3D
Genera renderizados de calidad fotográfica de tus proyectos en sólo unos minutos.

Catálogo de Planos
Comparte planos entre los miembros del equipo y trabaja de forma más colaborativa.
¿Cómo Puede un Sencillo Programa Para Diseñar Casas Online Beneficiar a tu Empresa?
La creación de impresionantes diseños de forma profesional no solo ayuda a acortar el ciclo de ventas y crear una comunicación fácil, sino que también se puede utilizar para impulsar el éxito de tu estrategia de marketing.
“Cedreo nos ayudó a aumentar la producción de renderizados, reduciendo el coste total de mano de obra por cliente”
“Es una gran opción para modelar rápidamente y crear imágenes realistas del anteproyecto”

