Immobilien Exposé für Präsentationsdokumente
Gestalten und individualisieren Sie Ihr Exposé und sparen Sie Zeit bei der Erstellung Ihrer Vorprojekte und bei den Behördenanträgen im Planungsprozess.
Präsentieren Sie zu 100% individuelle und immer aktuelle Dokumente
Es war noch nie so einfach, vollständige, fehlerfreie und auf Ihre Farben abgestimmte Projekte zu präsentieren.
Steigern Sie Ihre Effizienz
Verwalten Sie alle grafischen Elemente (Grundrisse, Schnitte und Fassaden, Lagepläne, Dachpläne, 3D-Visualisierungen) sowie Ihre Vorprojekte an einem Ort für eine bessere Organisation und Zeitersparnis. Und um noch effizienter zu arbeiten, arbeiten Sie mit Ihrem Team zusammen, indem Sie Ihre Projekte teilen.

Erstellen Sie Ihr Exposé nach Ihrem Image
Importieren Sie Ihr Logo, Ihre Grafikelemente, Fotos, beschriften Sie diese und passen Sie das Layout in den Farben Ihres Unternehmens für qualitativ hochwertige Vorprojekte an.

Vermeiden Sie Fehler
Bei jeder Änderung an den Plänen oder Oberflächen Ihres Projekts werden die in Ihren Unterlagen eingefügten grafischen Elemente automatisch aktualisiert. Sie müssen sie nicht mehr manuell ersetzen. Vermeiden Sie so Fehler: Ihre Präsentationen sind immer auf dem neuesten Stand.

Erstellen Sie Ihre Grafikelemente
Nutzen Sie eine einzige umfassende Software, um alle für Ihre Projektdarstellungen erforderlichen grafischen Elemente zu erstellen.
Zeichnen Sie leicht Grundrisse, Massenpläne, Schnitte und Fassaden. Importieren Sie Pläne, um das Zeichnen zu erleichtern, und arbeiten Sie mit Ihrem Team zusammen, indem Sie Ihre Projekte teilen. Generieren Sie fotorealistische 3D-Renderings in wenigen Minuten und profitieren Sie von allen notwendigen grafischen Elementen für Ihre Vorprojekte und Behördenanträgen im Stadtplanungsprozess.
Pläne 3D-Renderings
Erstellen Sie Ihre Immobilien Exposés
Alle Ihre grafischen Elemente sind am selben Ort gespeichert. Fügen Sie ein Dokument hinzu, bevor Sie es gestalten – einfach und intuitiv.
- 1 Projekt, mehrere Unterlagen: Erstellen Sie so viele Präsentationsdokumente wie nötig für ein Projekt.
- Eine Bibliothek grafischer Elemente für jedes Projekt: Finden Sie alle Ihre Grundrisse und 3D-Ansichten in der Projektbibliothek, bereit zur Integration in Ihre Unterlagen im gewünschten Maßstab. Die Grundrisse werden in Echtzeit aktualisiert, wenn Sie die Zeichnung oder Oberflächen ändern.
- Importieren Sie jede Art von Bildern: Ergänzen Sie Ihre Präsentation mit den für Ihre Baugenehmigung erforderlichen Bildern.

Personalisieren Sie Ihre Exposés
Erstellen Sie Exposés in Ihren Farben, Ihrem Stil, für qualitativ hochwertige Präsentationen.
- Einfache Konfiguration: Einstellung der Ausrichtung des Dokuments, des Formats sowie der Druckränder.
- Gestalten Sie Präsentationen nach Ihrem Image: Verschieben und ändern Sie Bilder, fügen Sie Ihr Logo ein, erstellen Sie eine Kopfzeile, wählen Sie aus, ob sie auf allen Seiten wiederholt werden soll, und passen Sie sie den Farben Ihrer Marke an.
- Verfeinern Sie Ihre Unterlagen weiter: Fügen Sie Textfelder, Linien, Pfeile, Formen hinzu und passen Sie sie Ihren Farben an.

Laden Sie Ihre Exposés im Maßstab herunter
Verwalten Sie einfach die Maßstäbe Ihrer in Ihr PDF-Exposé eingefügten Grudnrisse und kümmern Sie sich nicht mehr um Maßstabsprobleme beim Drucken!
- Legen Sie den Maßstab Ihrer Grudnrisse fest: Wählen Sie für jeden Grundriss, den Sie Ihrem Exposé hinzufügen, den gewünschten Maßstab.
- Fügen Sie eine Legende hinzu: Wenn Sie einen Plan zu Ihrem Dokument hinzufügen, geben Sie dies an, indem Sie den Maßstab ergänzen.
- Herunterladen: Laden Sie Ihre Exposés im PDF-Format herunter.

Zeitsparende Funktionen für hochwertige Immobilien Exposés
Konzentrieren Sie sich auf wertschöpfende Aufgaben und sparen Sie Zeit bei der Erstellung Ihrer Exposés.
Texte und Anmerkungen
Anpassbare Textfelder, die mit Pfeilen, Linien und anderen Formen hervorgehoben werden können.
Magnetismus
Präzise und einfache Verschiebung und Positionierung von grafischen Elementen im Dokument.
Maßstab der Grundrisse
Anpassbare Auswahl des Maßstabs für jeden dem Dokument hinzugefügten Grundriss.
Bilder importieren
Import von Bildern oder Fotos zur Ergänzung des Dokuments (z. B. Lageplan oder Katasterplan).
Individuelle Layout
Anpassung der im Dokument verwendeten Farben, Schriften, Hinzufügen Ihres Logos.
Dokumenteinstellungen
Auswahl der Ausrichtung (Quer- oder Hochformat), des Formats (A3 oder A4) und der Druckränder.

Automatische Aktualisierung
Änderungen an einem Plan oder Oberflächen führen zu einer automatischen, Echtzeit-Aktualisierung der im Dokument eingefügten grafischen Elemente.

Hintergrundgrafik
Möglichkeit zur Erstellung individueller grafischer Elemente, die auf allen Seiten des Dokuments angezeigt werden sollen (Kopfzeile, Logo, etc.).
Nutzen Sie diese Funktionen, um schneller voranzukommen
Gehen Sie über das hinaus! Cedreo bietet mehr als nur die Erstellung von Dokumenten. Entdecken Sie, was Sie noch mit Cedreo erreichen können.

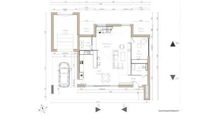
Grundrisse
Erstellen Sie vollständige und präzise Pläne für Ihre Bau- oder Renovierungsprojekte.

3D-Plan
Gestalten Sie Ihre Projekte in 3D und erstellen Sie axonometrische Ansichten.

Lageplan
Modellieren Sie das natürliche und das fertige Gelände in weniger als 20 Minuten.

Flächenpläne
Erhalten Sie automatisch die Flächenpläne Ihrer Projekte.

Schnittpläne
Erstellen Sie Schnittpläne mit einem einfachen Klick, detailliert mit Maßen und Anmerkungen.

Ansichten
Wählen Sie die betreffende Fassade aus und klicken Sie. Ein Kinderspiel!

3D-Renderings
Generieren Sie in wenigen Minuten fotorealistische Renderings Ihrer Projekte.

Plan-Katalog
Teilen Sie die Pläne unter den Mitgliedern Ihres Teams für eine bessere Zusammenarbeit.
Es ist einfach zu bedienen.
Aber Sie können sich immer auf den Cedreo-Support verlassen.
Denn Sie können immer weiter gehen und Zeit sparen.
Das sagen zufriedene Kunden über Cedreo
„Eine wahre Revolution“
Eine wahre Revolution für die Konzeption und Präsentation eines Projekts in der Verkaufsphase. Ein sehr gutes Tool, das sich kontinuierlich verbessert und uns das Leben erleichtert.
„Das unverzichtbare Werkzeug für den Hausverkauf“
Eine einfach zu beherrschende Software, die zu realistischen und ansprechenden Grundrissen und 3D-Visualisierungen führt. Die Interessenten sind begeistert von der Präsentation, und folglich werden die Vertriebsberater bei ihren Aktivitäten und Verkäufen unterstützt.