Documente de prezentare a proiectului
Proiectați și personalizați documentele de prezentare și economisiți timp creând proiectele preliminare
Documente de prezentare 100% personalizate și mereu la zi
Nu a fost niciodată mai ușor să prezentați proiecte complete, fără erori folosind culorile brandului tău
Câștigați eficiență
Gestionați într-un singur loc toate documentele vizuale ale proiectului dvs. (planuri de etaj, planuri de vedere în secțiune transversală și în elevație, planuri de amplasament, planuri de acoperiș și imagini 3D), împreună cu documentele preliminare, pentru o organizare mai bună care vă ajută să economisiți timp. Colaborați eficient cu echipa dvs. prin partajarea proiectelor, pentru o eficiență maximă în gestionarea proiectelor de construcție și renovare.

Creați documente de prezentare a proiectului care să reflecte viziunea dvs
Importați-vă logo-ul, graficele, fotografiile și adnotările și personalizați aspectul cu culorile corporative pentru proiecte preliminare de înaltă calitate.

Evitați greșelile
De fiecare dată când modificați planurile sau șablonul proiectului, graficele inserate în documentele dumneavoastră sunt actualizate automat. Nu este nevoie să le înlocuiți manual. Evitați erorile: prezentările dvs. sunt mereu la zi.

Creați grafica
Profitați de un pachet software unic și cuprinzător pentru a desena toate elementele grafice de care aveți nevoie pentru prezentările de proiect.
Desenați cu ușurință planuri detaliate de etaj, planuri de amplasament și planuri de vedere în secțiune transversală și în elevație. Puteți importa planuri existente pentru un început rapid și colaborați eficient cu echipa dvs. prin partajarea proiectelor. Cedreo vă permite să generați rapid randări 3D fotorealiste în doar câteva minute, inclusiv toate elementele grafice necesare pentru schițele preliminare ale proiectului.

Proiectați documentele de prezentare a proiectului preliminar
Toate elementele grafice sunt stocate într-un singur loc. Adăugați-le într-un document înainte de a le aranja – este simplu și ușor.
- 1 proiect, documente multiple:creați câte documente de prezentare aveți nevoie pentru un singur proiect.
- O bibliotecă de elemente grafice pentru fiecare proiect:găsiți toate planurile și vederile dvs. 3D în biblioteca de proiecte, gata să fie integrate în documentele dvs. la scara dorită. Planurile sunt actualizate în timp real de fiecare dată când modificați aspectul, culorile sau sigla.
- Importă orice tip de imagine: completați-vă prezentarea cu imaginile necesare pentru aplicațiile dvs. de planificare.

Personalizați documentele
Creați documente în culorile mărcii dvs., cu logo-ul dvs., pentru prezentări de înaltă calitate.
- Ajustați cu ușurință parametrii: orientarea documentului, formatul și marginile de imprimare.
- Personalizați prezentările după preferințele dvs.: mutați și modificați imagini, adăugați sigla, creați un antet, selectați opțiunea de repetare pe toate paginile și ajustați culorile brandului.
- Îmbunătățiți precizia documentelor: adăugați text, linii, săgeți și forme, personalizându-le cu culorile dvs. preferate.

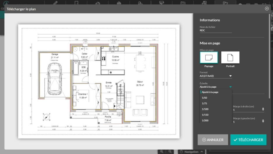
Descărcați documentele la scară
Gestionați cu ușurință scara planurilor dvs. introduse în documentele de prezentare PDF, astfel încât să nu vă faceți griji cu privire la problemele de scalare la imprimare!
- Definiți amploarea planurilor dvs.: alegeți scara adecvată pentru fiecare plan inclus în documentul de prezentare.
- Includeți o legendă: pentru fiecare plan adăugat în document, specificați scara corespunzătoare.
- Descărcați: salvați documentele de prezentare ale proiectului în format PDF pentru distribuție și arhivare.

Funcționalități care permit să economisiți timp pentru realizarea unor documente de calitate
Economisiți timp și concentrați-vă pe sarcinile cu valoare adăugată prin utilizarea funcțiilor eficiente pentru documentele de prezentare a proiectelor.
Text și adnotări
Zone de text personalizabile care pot fi evidențiate cu săgeți, linii și alte forme.
Magnetism
Mișcarea și poziționarea precisă și ușoară a părților grafice în cadrul documentului.
Scări de plan
Alegerea unei scări personalizabile pentru fiecare plan adăugat în document.
Importați imagini
Importați imagini sau fotografii pentru a fi adăugate la documente (planul site-ului sau harta cadastrală, de exemplu)
Aspect personalizat
Personalizați culorile utilizate în document și fonturile și adăugați logo-ul dvs.
Parametrii documentului
Alegerea orientării (peisaj sau portret), format (A3 sau A4) și marginile de imprimare.
Actualizări automate
Modificarea unui plan sau a detaliilor suprafețelor actualizează automat graficele în document, asigurând o sincronizare în timp real a informațiilor.
Șabloane de pagină
Elemente grafice personalizate pot fi create pentru a fi afișate pe toate paginile documentului (cartuș, logo, etc.)
Avansați mai rapid combinând aceste caracteristici!
Cedreo nu se limitează doar la designul de documente. Explorați și alte funcționalități pe care le puteți folosi!

Planuri de etaj
Creați planuri complete și precise pentru proiectele dvs. de construcție sau renovare.

Planuri de etaj 3D
Proiectați-vă proiectele în 3D și creați vederi axonometrice.
Află mai multe

Planuri de amplasament
Modelați terenuri naturale și finisate în mai puțin de 20 de minute.

Tabele de suprafață
Generați automat tabele de suprafață pentru proiectele dvs.

Planuri transversale
Creați desene în secțiune cu un singur clic, detaliind cu dimensiuni și adnotări.
Află mai multe

Planuri de vedere la altitudine
Selectați vizualizarea relevantă și faceți clic. Este o joaca de copii!
Află mai multe

Randare 3D
Generați randări fotorealiste ale proiectelor dvs. în doar câteva minute.
Află mai multe

Catalog Planuri
Împărtășiți planuri între membrii echipei pentru o muncă mai colaborativă.
Cum poate un simplu program online de planificare a casei să ajute firma Dvs?
Crearea de modele uimitoare în mod profesional nu numai că ajută la scurtarea ciclului de vânzări și la crearea unei comunicări ușoare, dar poate fi folosită și pentru a spori succesul strategiei dvs. de marketing.
„Cedreo ne-a ajutat să creștem producția de randări, reducând costul total al forței de muncă per client”
„Este o opțiune excelentă pentru a modela rapid și a crea imagini realiste ale proiectului preliminar”