Entre les exigences des services d’urbanisme et les éléments techniques à intégrer, la réalisation d’un plan de masse DP2 conforme est un exercice délicat pour les professionnels de la construction. Des complications qui se traduisent par des corrections chronophages et des allers-retours administratifs, impactant la rentabilité des projets. Pourtant, avec une méthodologie éprouvée et des outils professionnels comme Cedreo, la réalisation de plans de masse conformes devient simple et efficace. Découvrez dans ce guide tous nos conseils pour valider vos DP2 du premier coup.
Qu’est-ce qu’un plan de masse DP2 ?

Dans le cadre d’une déclaration préalable de travaux, le DP2 correspond à la pièce obligatoire numéro 2 : le plan de masse. Ce document n’est pas le seul exigé par les services d’urbanisme pour avoir l’autorisation de construire. Le dossier est complété par :
- Le plan de situation, qui localise la propriété dans son environnement global.
- Le plan de coupe, permettant de visualiser les niveaux et le relief du site.
- Les plans des façades et des toitures, qui examinent les aspects extérieurs du projet.
Le plan de masse DP2 est une représentation graphique en vue aérienne d’une parcelle de terrain qui présente l’état actuel et les modifications envisagées. Il est parfois divisé en deux parties distinctes :
- Le plan masse existant : l’état actuel du terrain, incluant les constructions, les accès, les réseaux et les aménagements extérieurs.
- Le plan masse projeté : les modifications prévues, comme les nouvelles constructions, les extensions ou les futurs aménagements.
Dans certains cas, ces deux plans sont combinés en un seul document, avec une distinction claire entre l’existant et le projeté, pour une meilleure lisibilité et faciliter ainsi l’instruction des autorisations d’urbanisme.
Quand faut-il fournir un plan de masse pour une déclaration préalable de travaux ?

Le plan de masse, ou DP2, est une pièce obligatoire pour toute demande de permis de construire ou déclaration de travaux. Dès qu’un projet nécessite une déclaration préalable, un plan de masse est requis pour présenter l’état actuel et les modifications prévues.
Pour rappel, les types de travaux qui nécessitent une déclaration :
- Création de surface de plancher ou d’emprise au sol : vérandas, terrasses, extensions, surélévations, mezzanines.
- Constructions nouvelles : abris de jardin, garages, carports, pergolas.
- Modifications extérieures : ravalement de façade, création d’ouvertures, remplacement de menuiseries, panneaux solaires.
- Aménagements extérieurs : clôtures, division parcellaire, piscine, jacuzzis.
Plan de masse pour permis de construire vs DP2 : quelles différences ?
DP2
Le DP2 est requis pour les projets de faible ampleur, tels que les extensions de moins de 20 m², les clôtures, les piscines ou les abris de jardin. Ce document simplifié présente les constructions existantes et projetées, avec leurs dimensions, hauteurs et distances aux limites du terrain. Son objectif principal est de garantir que le projet respecte les règles d’urbanisme locales, en s’appuyant sur une présentation claire et concise.
PC2
Le PC2 ou PCMI2 (« Permis de Construire d’une Maison Individuelle pièce numéro 2”), s’applique aux projets de plus grande envergure, comme les nouvelles constructions ou les extensions importantes. Plus détaillé, ce plan de masse doit inclure des informations exhaustives sur la topographie, les réseaux, les zones à modifier et les aménagements extérieurs. Il vise à assurer l’intégration harmonieuse du projet dans son environnement, tout en respectant les exigences légales du code de l’urbanisme.
Les éléments indispensables d’un plan de masse DP2
Pour une déclaration préalable de travaux, le plan de masse coté doit inclure les éléments suivants :
- Les constructions existantes sur la parcelle : largeurs, longueurs, hauteurs et emplacements exacts.
- Le projet proposé : les nouvelles constructions ou modifications en détails, avec leurs dimensions, hauteurs, et emplacements précis.
- Les limites de la parcelle : les distances par rapport à ces limites, incluant les clôtures.
- Les accès au terrain depuis la voie publique : portails, cheminements piétons et véhicules.
- Les raccordements aux différents réseaux : électricité, eau, assainissement, et autres infrastructures.
- Les places de stationnement : emplacements prévus ou existants pour les véhicules.
- Les espaces verts, plantations et arbres : ceux existants, à planter, ou à abattre, avec les essences et hauteurs précises.
- Les angles de prises de vue : photographies jointes à la déclaration, avec les emplacements d’où elles ont été prises.
- Le trait de coupe : correspondant au plan de coupe pour visualiser les niveaux du terrain.
- Une échelle graphique : obligatoire depuis le 1er juillet 2023 pour assurer une lecture précise.
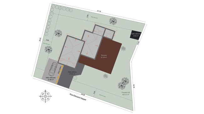
DP2 plan de masse: quelques exemples concrets
Un plan de masse clair et détaillé intégrant maison, piscine, terrasse, stationnement voiture, mur de soutènement et réseaux, pour une vision complète du projet et de son implantation :

Une implantation optimisée avec plusieurs volumes bâtis, des accès bien définis et une intégration harmonieuse dans la parcelle :

Un projet pensé pour tirer parti du terrain, avec maison, terrasse et piscine, tout en respectant les contraintes réglementaires du plan de masse :

Déclaration préalable : 5 erreurs fréquentes à éviter sur le plan de masse DP2
Erreur 1 : Manque de précision dans les mesures
Des dimensions approximatives ou des cotes mal indiquées compliquent l’analyse du projet par les services d’urbanisme. Les longueurs, largeurs et hauteurs des constructions doivent être clairement précisées.
Erreur 2 : Absence de certains éléments obligatoires
Un plan de masse incomplet, omettant des éléments comme les limites de la parcelle, les accès, ou les réseaux, peut entraîner une demande de complément. Vérifiez que toutes les informations requises figurent bien sur votre document.
Erreur 3 : Omission de la différenciation entre l’existant et le projet
Ne pas distinguer clairement les constructions existantes des modifications projetées est une erreur fréquente. Utilisez un code couleur ou des légendes pour différencier ces éléments et éviter toute confusion lors de l’évaluation.
Erreur 4 : Mauvaise orientation ou échelle du plan
Un plan mal orienté ou à une échelle inadéquate complexifie la compréhension globale du projet. Indiquez systématiquement le Nord et utilisez un ratio de réduction adéquat pour faciliter la lecture.
Erreur 5 : Documentation graphique incomplète
Des annotations insuffisantes, des photos absentes, ou une légende manquante peuvent compromettre la clarté du plan. Ces éléments visuels sont indispensables pour une analyse rapide et une validation efficace de votre dossier.
Cedreo, le logiciel tout-en-un pour vos plans de masse
Face à ces erreurs fréquentes qui peuvent compromettre vos déclarations préalables, l’utilisation d’un logiciel professionnel devient incontournable. Avec Cedreo, vous avez un outil métier intuitif tout-en-un pour vous concentrer sur l’essentiel : la conception de vos projets.
Des fonctionnalités dédiées pour créer vos plans de masse DP2

Cedreo intègre tous les outils nécessaires pour concevoir rapidement des plans de masse professionnels et réglementaires :
- Import facile: Importez le plan de cadastre ou géomètre aux formats pdf, jpeg, png, dwg ou dxf et utilisez-le comme calque afin de tracer rapidement votre terrain naturel.
- Travail en 2D/3D : Profitez d’une vue 3D générée automatiquement pendant que vous dessinez en 2D. Vous pouvez apporter des changements dans l’une des fenêtres et les voir reflétées dans l’autre.
- Gestion intuitive de l’altimétrie : Représentez facilement les reliefs du terrain et ajustez l’implantation de la construction grâce aux points d’élévation. Ajouter des éléments complexes tels que des talutages, des murs de soutènement, ou des bordures.
- Bibliothèque d’éléments : Accédez à des milliers d’objets (constructions, végétation, mobilier extérieur) pour enrichir vos plans en quelques clics.
- Export professionnel : Ajoutez toutes les annotations réglementaires (cotations, légendes, symboles normalisés) et vérifiez l’échelle avant d’exporter votre plan de masse en haute définition pour un DP2 conforme.
Comment utiliser Cedreo pour vos déclarations préalables ?

En moins de 20 minutes, avec Cedreo vous créez un plan de masse :
- Importez le plan cadastral ou les relevés du terrain pour établir une base précise.
- Dessinez les constructions existantes et projetées, en respectant les dimensions et distances obligatoires.
- Ajoutez les réseaux et aménagements extérieurs, comme les raccordements ou les espaces verts.
- Générez des vues 3D et 2D pour une meilleure visualisation et une présentation professionnelle.
- Exportez facilement votre plan au format demandé par les services d’urbanisme.
Tous vos documents graphiques et administratifs dans un seul outil
Au-delà du plan masse, Cedreo centralise tous vos documents graphiques, administratifs et commerciaux dans un seul outil :
- Plans de niveaux, de coupe et de façades : présentez une vue détaillée de chaque aspect du projet.

- Visuels 3D photoréalistes : aidez vos clients à se projeter dans leur futur espace.

- Documents administratifs complets : préparez des dossiers conformes aux exigences des déclarations préalables ou permis de construire pour réduire le risque de refus.

Cette approche tout-en-un simplifie votre travail et vous fait gagner un temps précieux à chaque étape de votre projet.