Cedreo, le logiciel de maîtrise d’œuvre pour la conception de vos projets
Un seul logiciel pour réaliser vos dossiers de construction et de rénovation en moins de 2 heures.
Une solution simple pour créer vos avant-projets et permis de construire plus rapidement
Cedreo est le logiciel de maîtrise d’œuvre, professionnel et accessible.
Modélisez vos projets de construction et de rénovation, tracez les plans de masse, plans de niveaux 2D/3D, plans de coupe et de façade, générez des visuels 3D photoréalistes et constituez vos dossiers d’avant-projet et de permis de construire.
Une interface unique qui vous fera gagner du temps sur chaque phase pour convaincre vos clients.
Tracez
Créez l’ensemble de vos plans techniques en quelques clics, du tracé 2D à l’export réglementaire, pour convaincre vos clients et déposer vos dossiers de permis de construire.
- Import des plans de cadastre et bâti pour tracer la parcelle et implanter la maison
- Modélisation du terrain avec altimétrie, allées, terrasses et murs de soutènement
- Tracé 2D générant automatiquement la modélisation 3D et les plans de niveau
- Toiture avec périmètre détecté automatiquement et noues créées en 1 clic
- Plans à l’échelle annotés exportables en PDF et DXF, prêts pour vos dépôts DP/PC

Visualisez en 3D
Obtenez des rendus photoréalistes en quelques minutes qui rassurent vos clients à chaque étape du projet.
- Rendus HD ou Full HD générés en moins de 5 minutes
- Aménagement intérieur 3D rapide par styles grâce aux packs d’ameublement
- Vues intérieures et extérieures photoréalistes avec ambiance jour ou coucher de soleil
- Points de vue et réglages de lumière enregistrables pour gagner du temps.

Présentez (APS, DP et PC)
Générez des dossiers vendeurs et réglementaires impeccables, sans risque d’erreur et prêts à partager.
- Mise à jour automatique : toute modification de tracé se répercute dans vos plans
- Plans de coupe et façades configurables avec annotations et symboles personnalisés
- Mise en page professionnelle : logo, infos entreprise, tableaux de surfaces, sommaire
- Export PDF en 1 clic pour un partage simple avec vos clients, artisans et partenaires

Tous vos plans dans un seul logiciel
Créez l’ensemble de vos plans techniques dans une seule solution simple, rapide et pensée pour les maîtres d’œuvre.
Cedreo vous aide à produire plus vite des documents fiables et conformes aux démarches d’urbanisme.
- Plans de niveau 2D/3D : accédez à des plans complets avec cotes, surfaces, murs, cloisons, composition des murs et ouvrants, et visualisez instantanément en 3D pour valider aménagement, volumes et revêtements.
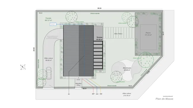
- Plan de masse : générez automatiquement les plans à l’échelle, avec l’orientation, les limites séparatives, les espaces verts, les réseaux et l’emprise au sol, ainsi que les annotations utiles pour partager les informations indispensables à un dossier d’urbanisme clair et conforme.
- Façades, toitures et coupes : visualisez les cotes d’élévation à partir du terrain, les clôtures et la végétation, ajoutez les cotes et annotations nécessaires pour obtenir des plans clairs et précis.
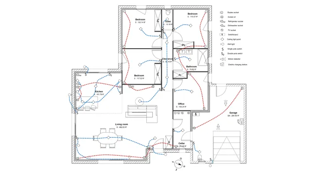
- Plans électriques : ajoutez symboles, lignes de circuit et annotations, pour visualiser le positionnement des éclairages, va-et-vient, prises et d’éviter les modifications en chantier tout en sécurisant les échanges avec artisans et clients.

Rendu 3D photoréalistes pour les vues intérieures et extérieures
Modéliser en 3D de façon simple, précise et rapide.
Cedreo génère des visuels réalistes et immersifs pour aider le client à se projeter immédiatement et accélérer la signature.
- Perspectives intérieures : visualisez l’impact des rénovations, meublez une pièce en 1 clic grâce aux packs d’ameublement, proposez des vues avant/après avec la même perspective pour que les clients visualisent la transformation.
- Visuels 3D extérieurs : personnalisez les façades et les clôtures, ajoutez revêtements, portail, terrasse, allées et végétation pour créer un aperçu complet extérieur et paysager.
- Effets d’éclairage réalistes : choisissez la lumière du jour ou une ambiance crépusculaire pour offrir un rendu réaliste et vendeur.
- Insertion paysagère : placez la maison dans son environnement réel grâce à une photo du terrain ou choisissez parmi les arrière-plans campagne, montagne ou urbain disponibles dans Cedreo.

De l’avant-projet jusqu’au permis de construire
Cedreo est indispensable pour permettre au maîtres d’œuvre de créer des avant-projets et des dossiers de permis de construire rapidement.
Le logiciel automatise les détails techniques pour vous permettre de vous concentrer sur l’essentiel et réduire les délais.
- Modèles de documents personnalisables : mise en page avec votre logo, page de garde et charte graphique aux couleurs de votre marque pour des présentations professionnelles qui valorisent votre image.
- Mise à jour automatique des plans : toute modification du tracé ou des revêtements se répercute instantanément dans vos documents pour éviter les erreurs et garantir la cohérence.
- Pièces graphiques complètes générées automatiquement : plans de niveau, plans de masse, coupes, façades et tableaux de surfaces créés en quelques clics pour constituer des dossiers conformes.
- Export et partage simplifiés : téléchargez vos documents en PDF haute qualité en 1 clic et partagez facilement avec clients, artisans et services d’urbanisme.

Un logiciel pensé pour le maître d’œuvre
Cedreo réunit les outils et services qui simplifient le quotidien des maîtres d’œuvre et fluidifient chaque étape d’un projet de construction, d’agrandissement, ou de rénovation pour avancer plus vite, réduire les imprévus et mieux accompagner les clients.
Travaillez partout, Cedreo :
logiciel 100 % en ligne
Accédez à vos projets depuis n’importe quel ordinateur, Cedreo ne nécessite pas d’installation, de maintenance ni de contrainte matérielle.
Prise en main immédiate
Concevez vos projets en moins de 2 heures grâce à une interface pensée pour aller vite, sans complexité ni compétences CAO avancées.
Accompagnement expert et réactif
Profitez d’une équipe support qui maîtrise vos enjeux métier, disponible par téléphone, mail et chat, ainsi que de nombreux tutoriels pour répondre à vos questions et avancer plus vite.
Solution tout-en-un
Tous vos outils de conception au même endroit. Réalisez plans 2D/3D, rendus photoréalistes et dossiers complets dans un seul logiciel, sans avoir à redessiner ou exporter ni gérer plusieurs licences.
Toutes les mises à jour incluses
Dès l’abonnement, vous bénéficiez de l’ensemble des outils, modèles 3D, options de rendu et mises à jour continues, sans frais supplémentaires.
Bibliothèque de matériaux, ouvrants et aménagement intérieur
Chaque mois, de nouveaux revêtements, menuiseries, équipements et packs d’ameublement sont ajoutés au catalogue pour concevoir rapidement des intérieurs et extérieurs.
Exemples de plans et perspectives 3D réalisés avec Cedreo
Découvrez quelques exemples concrets de projets de construction, rénovation et extension que vous pouvez créer avec le logiciel pour la maîtrise d’œuvre Cedreo. Des maisons modernes aux projets de rénovation avec extension, ces conceptions illustrent la diversité et la polyvalence offertes par Cedreo.

Rendu 3D avec insertion paysagère

Plan de niveaux en 2D

Rendu 3D extérieur d’une extension

Plan de niveaux en 3D

Plan de masse

Plan de coupe

Plan électrique

Rendu 3D photoréaliste intérieur

Plan de façade
C’est facile à utiliser.
Mais vous pouvez toujours compter sur le support Cedreo
Pour une prise en main encore plus rapide.
Parce que vous pouvez toujours aller plus loin et gagner du temps.
Ce qu’ils pensent de Cedreo
« Un logiciel simple à maitriser qui aboutit à des plans de niveaux et visuels 3D réalistes et séduisants. »
« Les prospects sont ravis de la présentation et par voie de conséquence les conseillers commerciaux sont aidés dans leurs démarches et dans leurs ventes. »
« Les plans sont précis et les graphiques exceptionnels. »
« Rien à redire de cet excellent logiciel. J’utilise personnellement ce logiciel incomparable depuis plus de 4 ans
et ne me vois pas travailler sans cet outil performant. »
FAQs
Cedreo est un logiciel de maîtrise d’œuvre qui permet de tracer des plans et modéliser en 3D pour concevoir un projet de construction ou de rénovation complet. Il permet d’obtenir tous les plans : niveaux, masse, coupe, façade, toit, électrique. Vous gagnez en précision, en rapidité et en qualité pour présenter des projets convaincants à vos clients.
Le logiciel Cedreo est conçu pour les maîtres d’œuvre : il génère automatiquement les éléments essentiels d’un dossier APS : plans de niveaux, plan de masse, rendus 3D réalistes et documents de présentation exportable en PDF pour présenter un projet clair et convaincant. Les plans de coupe, les façades et l’insertion paysagère se paramètrent facilement en quelques clics afin de préparer des vues conformes aux exigences lors du dépôt du permis.
Oui. Avec Cedreo, logiciel pensé pour les maîtres d’œuvre, vous réalisez vous-même les plans nécessaires à vos dossiers : modélisation et aménagement du terrain, tracé du bâti pour la création des plans de niveaux et du plan de masse. Les plans de coupe et de façade se personnalisent en quelques clics, avec annotations et légendes, ainsi que les tableaux de surfaces générés automatiquement. Vous produisez ainsi un PC au format PDF sans passer par un dessinateur.
Cela réduit les coûts de sous-traitance tout en gardant le contrôle sur vos dossiers.
Cedreo est un logiciel de maîtrise d’œuvre complet qui permet de créer rapidement tous types de plans, des visuels 3D réalistes et les dossiers APS et PC détaillés.
Grâce à son interface intuitive et une prise en main rapide, vous gagnez du temps à chaque phase d’un projet de construction et de rénovation.
C’est l’un des meilleurs logiciels pour les maîtres d’œuvre qui ont besoin de concevoir plus vite, réduire les imprévus et rester à l’écoute de leurs clients.