Collaboration entre équipes techniques et commerciales
Simplifiez les échanges entre commerciaux et bureau d’études et gagnez en productivité.
Un logiciel unique pour le commerce et le bureau d’études
Cedreo facilite la collaboration entre bureaux d’études et équipes commerciales grâce à une plateforme partagée. Les plans, rendus et documents sont accessibles en temps réel, permettant des ajustements rapides et une communication fluide. Cette synchronisation améliore la productivité, réduit les erreurs et garantit que chaque projet présenté aux clients reflète fidèlement les attentes et exigences techniques.
Accélérez votre productivité
En dessinant ou adaptant des projets existants, les commerciaux réduisent le temps entre le premier rendez-vous et la présentation aux clients.
Le projet est sur-mesure ? Grâce aux paramètres de dessin pré-établis par le bureau d’études, le risque d’erreurs lors de la phase de dessin est amoindri.
Fonctionnalité :
La configuration des paramètres de dessin

Simplifiez les échanges
L’utilisation d’un même logiciel pour soumettre et valider tous les avant-projets permet une collaboration fluide entre le BE et les forces commerciales. Vos méthodes de travail et la gestion de projets sont optimisées.

Travaillez sur une seule plateforme
Évitez le travail en double en regroupant tous vos projets sur une même plateforme. Sauvegardez tous les plans pour qu’ils puissent être réutilisés par tous vos collaborateurs pour d’autres clients.

“Aujourd’hui, Cedreo est un outil que nous utilisons au quotidien.
Je ne sais pas comment je ferais sans !”
Les fonctionnalités clés pour une collaboration efficace
Réduire les allers-retours chronophages et les imports – exports dans d’autres logiciels, sécuriser la faisabilité des projets, réutiliser le travail déjà accompli, Cedreo vous fait gagner du temps et vous aide à présenter plus rapidement à vos clients un projet validé techniquement.

Catalogue de plans
Une fois dessinés par le bureau d’études, les plans du catalogue sont prêts à être adaptés par les commerciaux en quelques clics afin de répondre aux besoins de chaque client.

Partage des projets
Tous les projets peuvent être partagés entre les collaborateurs, directement dans Cedreo. L’esprit d’équipe et l’entraide sont ainsi renforcés.

Validation des projets
Le BE peut valider les avant-projets partagés par les commerciaux pour s’assurer qu’ils sont cohérents avec le budget et le terrain du client.

Valeurs pré-paramétrées
Composition des murs, sols et plafonds, valeurs par défaut ou encore modèle de document, faites gagner du temps aux commerciaux lors de la phase de dessin et évitez les erreurs.
En savoir plus sur les paramètres de dessinC’est facile à utiliser.
Mais vous pouvez toujours compter sur le support Cedreo.
Pour une prise en main encore plus rapide.
Parce que vous pouvez toujours aller plus loin et gagner du temps.
La solution tout-en-un de la conception à l’exécution
Constructeurs, maîtres d’œuvre, gérez vos projets de constructions ou de rénovation de maison de A à Z avec Cedreo.
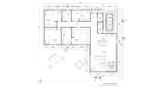
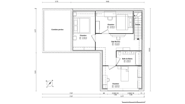
Plans de maison
Générez l’ensemble des plans techniques requis pour chaque phase de votre projet de construction ou de rénovation de maison.
En savoir plus sur les plansPlan de masse
Transformez le terrain naturel en terrain fini en intégrant les contraintes topographiques et l’implantation du bâti.
En savoir plus sur les plans de masseVisualisation 3D
Facilitez la projection client en générant des rendus 3D intérieurs et extérieurs du projet entièrement aménagés.
En savoir plus sur la visualisation 3DPrésentation de projets
APS, DP, PC… Concevez tous vos documents de présentation et personnalisez-les à vos couleurs.
En savoir plus sur la présentation de projetsChiffrage
Configurez l’option Chiffrage avec vos propres formules de calcul et obtenez une notice au plus près de vos coûts avec une marge maîtrisée.
En savoir plus sur le chiffrageQuestions fréquentes
Oui – Une fois le projet catalogue copié dans votre espace, vous pouvez le modifier pour l’adapter aux besoins et envies de votre client. En s’appuyant sur des plans déjà validés, les modifications ne prennent que quelques minutes, cela vous permet de présenter un projet complet très rapidement au client.
Oui – Une fois le projet partagé par le commercial, le technicien du bureau d’études peut visualiser et modifier le projet. Il peut également ajouter des commentaires pour indiquer les modifications qui ont été apportées. Une fois les modifications enregistrées, le commercial aura la version à jour dans son espace.
Oui – Vous avez le choix de partager votre projet avec :
- un autre commercial, il pourra réutiliser votre projet et ainsi gagner du temps.
- un technicien du bureau d’études, il pourra valider la faisabilité technique du projet.