Parmi les solutions pour agrandir sa maison, l’extension de maison en L se distingue par sa capacité à structurer l’espace, optimiser les apports de lumière, créer des zones extérieures protégées et générer une plus-value durable pour le propriétaire.
Mais pour réussir un projet d’agrandissement de maison en L, encore faut-il prendre les bonnes décisions : orientation, liaison avec les pièces existantes, traitement des vues, plan électrique. Découvrez nos conseils pour concevoir des projets d’extension en L performante, conforme et confortable… et gagnez en efficacité avec un outil comme Cedreo.
Points clés à retenir
- Le choix de l’implantation est stratégique : l’emplacement de l’extension est fait en fonction de son usage (pièce de vie, suite parentale, bureau) et du bâti existant pour garantir une circulation fluide et préserver l’intimité de chaque espace.
- La création d’espaces extérieurs protégés : l’intérêt de l’extension de maison en L est d’aménager un espace extérieur semi-fermé, protégé des regards et du vent, qui devient un véritable cocon à l’abri du tumulte idéal pour une terrasse ou un jardin paysager.
- L’optimisation de la lumière naturelle : les multiples façades de l’extension en L permettent de créer une double ou triple exposition qui capte la lumière tout au long de la journée, tout en veillant à ne pas assombrir les pièces existantes.
- La visualisation du projet avec Cedreo : un outil comme Cedreo permet de simuler rapidement différentes configurations d’extension en L, générer des plans précis, et présenter des visuels 3D photoréalistes qui facilitent la validation du projet par vos clients.
Optimiser l’implantation d’une extension de maison en L
Adapter l’implantation au programme du projet

Tout commence par une question de bon sens : à quoi l’extension doit-elle servir ? L’implantation idéale d’un projet d’extension dépend directement de son programme. Est-ce une extension de la pièce de vie ? L’ajout d’une suite parentale isolée ? L’intégration d’un garage ou d’un bureau indépendant au rez-de-chaussée ?
Chaque usage entraîne des contraintes spécifiques et oriente la manière dont l’extension s’intègre à la maison actuelle. Une chambre d’amis gagnera à être au calme, à l’écart des pièces communes. Un bureau nécessitera peut-être un accès indépendant, tandis qu’un espace de vie devra prolonger naturellement la circulation intérieure.
Le rôle du maître d’œuvre est ici central : analyser les besoins du foyer, proposer des solutions cohérentes pour gagner en surface habitable, et concevoir une implantation qui conjugue les envies des clients avec la faisabilité de la construction.
Choisir la bonne implantation en fonction du bâti existant

Une fois l’usage de l’extension défini, reste à déterminer où la positionner pour qu’elle s’intègre naturellement à la maison. L’extension doit s’inscrire dans la continuité du rez-de-chaussée, sans créer de ruptures dans la circulation intérieure. On veillera à minimiser les allers-retours inutiles et à conserver une logique fluide dans les déplacements.
L’intimité est un autre critère déterminant : si l’extension comprend une chambre, on évitera de l’orienter vers le salon pour ne pas créer de promiscuité gênante. À l’inverse, si elle abrite un local professionnel, il sera judicieux de la positionner avec un accès indépendant depuis l’extérieur, sans traverser toute la maison.
À chaque usage correspond donc une implantation stratégique selon les besoins actuels comme futurs des occupants : articuler les volumes, préserver les vues, faciliter les circulations…
Intégrer les contraintes du terrain dès la conception

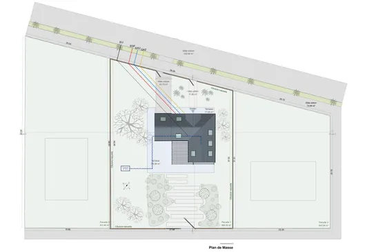
Un projet bien pensé est un projet qui anticipe. Et cela commence par l’analyse fine du terrain naturel. Tracer avec précision les lignes de recul (marges d’implantation imposées par le PLU, distances aux limites de propriété…), identifier les vis à vis gênants, exploiter les orientations pour capter la lumière… Tous ces éléments doivent être intégrés dès les premières esquisses.
Une implantation pertinente tient également compte des déclivités du terrain, des accès, et du positionnement des réseaux techniques. En plaçant l’extension au bon endroit, vous valorisez le projet, tout en simplifiant les démarches administratives (déclaration préalable de travaux ou permis de construire).
Avec Cedreo, vous pouvez simuler rapidement plusieurs options d’implantation en 2D et en 3D, et intégrer les contraintes du terrain dès le début de la conception. Les outils intégrés permettent de tracer les lignes de recul, modéliser les volumes et ajuster la position de l’extension pour proposer à vos clients une implantation cohérente et séduisante.

Créer des espaces extérieurs protégés pour valoriser le projet
Tirer parti de la forme en L pour se protéger des vis à vis

L’un des grands avantages de l’extension maison en L, c’est qu’elle permet de créer un angle structurant, véritable cœur du projet. En positionnant intelligemment l’extension par rapport à la maison, il est possible de façonner un espace extérieur semi-fermé, abrité des regards et du vent — un atout de taille, notamment pour les parcelles urbaines ou les terrains avec mitoyenneté.
Cet angle crée une zone d’intimité naturelle : les façades de la maison viennent elles-mêmes former un rempart contre les regards indiscrets. Ce “repli” devient un cocon à l’abri du tumulte, parfait pour installer un coin repas, un salon d’extérieur ou des bains de soleil sans être exposé.
Ce travail de positionnement stratégique permet d’optimiser l’usage de l’espace extérieur tout en valorisant l’implantation de l’extension. Bien pensé, ce cœur d’îlot devient un lieu de vie à part entière.
Avec Cedreo, vous pouvez visualiser ces aménagements en 3D dès la phase de conception, ajuster les volumes, tester différentes configurations de terrasses ou de plantations, et faciliter l’adhésion de vos clients à la proposition.
Créer une continuité intérieur/extérieur

Au-delà de la protection, l’extension en L permet aussi de renforcer la fluidité entre l’intérieur et l’extérieur. Lorsque le projet concerne un espace de vie — salon, salle à manger, cuisine —, l’angle créé peut être prolongé par une terrasse couverte, une pergola bioclimatique ou avec des baies vitrées qui s’ouvrent entièrement sur l’extérieur.
Résultat : la surface habitable s’agrandit naturellement aux beaux jours, créant un espace de vie hybride, entre dedans et dehors. C’est aussi un levier fort pour améliorer le confort thermique en été, valoriser les apports de lumière, et générer une sensation de volume plus importante.
Concevoir un cocon végétalisé
La forme en L peut aussi servir d’écrin à un jardin paysager de contemplation. À l’image des tsuboniwa japonais ou des patios méditerranéens, le creux formé entre la maison existante et l’extension devient un espace végétal, visible depuis les pièces principales.
Pour réussir cet aménagement, il est essentiel de prendre en compte :
- L’exposition (ensoleillement, vent, humidité)
- Les vues intérieures sur ce jardin
- L’ambiance souhaitée (minimaliste, luxuriante, structurée…)
Un paysagiste pourra aider à sélectionner les essences adaptées : plantes grimpantes pour créer de la hauteur sans empiéter sur la surface, végétation persistante pour garder un écrin vert toute l’année, éléments minéraux pour structurer l’espace…
Maximiser la lumière dans un agrandissement de maison en L
Prioriser les apports de lumière naturelle

L’extension en L offre une vraie richesse en matière d’ouvertures. Grâce à ses deux, voire trois côtés disponibles (selon l’implantation de la construction), elle permet une double ou triple exposition, idéale pour capter la lumière tout au long de la journée. C’est l’un des nombreux avantages de cette configuration : elle allie praticité, esthétisme et confort d’usage.
Au-delà de l’orientation, le positionnement des fenêtres joue aussi un rôle clé dans la qualité des vues depuis l’intérieur. Une ouverture bien placée peut encadrer un jardin arboré, un patio végétalisé ou un coin terrasse, et ainsi renforcer la connexion avec l’extérieur. À l’inverse, mieux vaut éviter les ouvertures donnant sur la rue ou des zones peu valorisantes.
Avec Cedreo, vous testez facilement différentes configurations d’ouvertures, ajustez leurs dimensions, et proposez des variantes adaptées à l’exposition comme à l’organisation intérieure.
Maintenir la luminosité dans toute la maison grâce à l’extension

Une extension en L mal positionnée peut malheureusement assombrir certaines pièces de la maison d’origine. Pour éviter cet écueil, créez des percées visuelles, soit par des ouvertures intérieures, soit via des cloisons vitrées ou des verrières donnant sur le nouvel espace.
Autre option : jouer sur les hauteurs. Une extension à toit plat permet de garder une hauteur homogène sans masquer les ouvertures déjà présentes. On peut aussi jouer sur le niveau du sol, en intégrant une surélévation légère ou un petit décaissement pour créer un effet de volume sans perte de lumière.
Enfin, dans certains cas, repenser l’agencement intérieur peut s’avérer judicieux pour redonner de la place à la lumière, quitte à déplacer certaines pièces. Un bon conseiller en conception pourra accompagner ces ajustements pour garantir une circulation lumineuse cohérente entre ancien et nouveau bâti.
Anticiper l’éclairage artificiel avec un plan électrique complet

Une extension peut assombrir certaines zones de la maison, notamment si elle modifie l’orientation ou masque des ouvertures. Il est donc essentiel d’anticiper les besoins lumineux dans l’ensemble du logement, et de prévoir des sources d’éclairage complémentaires à la fois dans l’extension et, si besoin, dans les pièces attenantes.
Selon la destination du nouvel espace — chambre, salle de bain, cuisine, bureau… —, les besoins en intensité et en type d’éclairage varient. Une cuisine ou un atelier nécessitent des sources lumineuses plus puissantes et bien ciblées (plans de travail, table à manger, îlot central…), là où une chambre peut se contenter d’une ambiance plus douce et indirecte.
On veillera également à diversifier les types d’éclairage :
- éclairage fonctionnel (spots encastrés, réglettes LED, suspensions au-dessus des zones clés),
- éclairage d’ambiance (appliques murales, rétroéclairage de niches, lampes décoratives…),
Autre point clé : prévoir un éclairage évolutif en fonction des usages futurs potentiels pour garantir flexibilité et confort d’usage. Une réflexion menée en amont permet d’éviter les rallonges disgracieuses ou les modifications coûteuses en cours de chantier.
Avec Cedreo, vous pouvez facilement créer un plan électrique précis. Le logiciel met à disposition l’ensemble des symboles normalisés (prises, interrupteurs, éclairages) pour générer un plan clair et conforme aux standards techniques.
Réussir son extension de maison en L : la fluidité du projet est la clé
Trois leviers pour concevoir une extension de maison en L cohérente et efficace
L’extension en L est l’un des modèles d’extension les plus polyvalents, pour de multiples raisons : elle permet d’agrandir une maison individuelle tout en valorisant son cadre de vie. Pour qu’elle révèle tout son potentiel, trois leviers doivent être soigneusement pensés dès l’amont du projet :
- Une implantation stratégique, qui s’intègre harmonieusement à la maison, optimise les circulations, préserve l’intimité et répond aux usages présents (et futurs) du foyer — que le projet porte sur une maison de plain-pied, un étage supplémentaire ou l’ajout d’un garage.
- Des espaces extérieurs bien définis, qui prolongent l’habitat et créent des zones protégées, apaisantes, voire contemplatives selon les matériaux de construction, l’exposition et les usages souhaités.
- Une gestion rigoureuse de la lumière naturelle et artificielle, essentielle au confort, à l’esthétique et à la valorisation globale de la construction.
Mais, réussir l’extension de maison de vos clients, c’est aussi anticiper les contraintes réglementaires. Produire des plans précis, cohérents et adaptés aux exigences du Code de l’urbanisme permet de faciliter les démarches administratives : demande de permis de construire, déclaration préalable de travaux, ou autorisation selon les contraintes locales.
Choisir un outil intuitif pour concevoir des extensions plus facilement

Pour accompagner vos clients dans leur projet d’extension, une solution comme Cedreo permet de faciliter la conception, la visualisation et la présentation de projets d’extensions de maisons en L, en 2D comme en 3D. Il permet de cadrer rapidement les grandes orientations du projet, de proposer des variantes compatibles avec le budget du client, et de renforcer la confiance dès les premières phases de conception.

- Tester plusieurs variantes d’implantation d’une extension en L, pour proposer les meilleures options à vos clients dès l’avant-projet : extension de maison en bois, extension en plain-pied, extension à toit plat ou à deux pans, extension sur deux étages…
- Réaliser rapidement des plans d’étage complets, ainsi que le plan électrique.
- Générer les documents nécessaires aux démarches administratives : plan de masse, coupes, façades… au bon format et aux bonnes échelles.
- Accélérer la validation client grâce aux visuels 3D photoréalistes.