Teken 2D-plattegronden op schaal
Snel en gemakkelijk
Creëer professionele 2D-plattegronden met Cedreo’s cloudgebaseerde huisontwerpsoftware.

Eenvoudig online een 2D-plattegrond maken
dankzij een groot aantal intuïtieve functies

Importeer een bestaande 2D-plattegrond
en voeg maatwerk afmetingen toe
Genereer 2D-plattegrond
afbeeldingen op schaal, inclusief een oppervlaktetabel

Cedreo biedt alles voor een nauwkeurig en uitgebreide 2D-plattegrond
Onze software is ideaal voor professionale huizenbouwers, verbouwers en interieur ontwerpers. Maak hoogwaardige tekeningen die voor klanten gemakkelijk te begrijpen zijn, zodat je meer woningprojecten kunt verkopen.
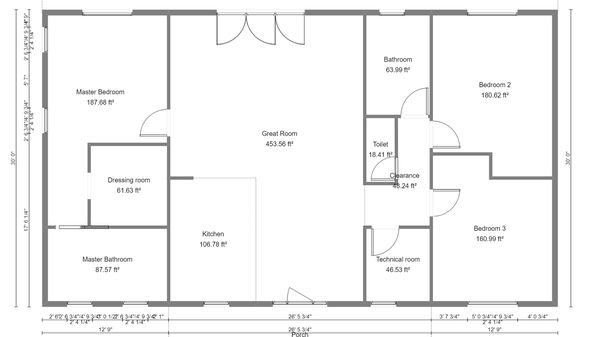
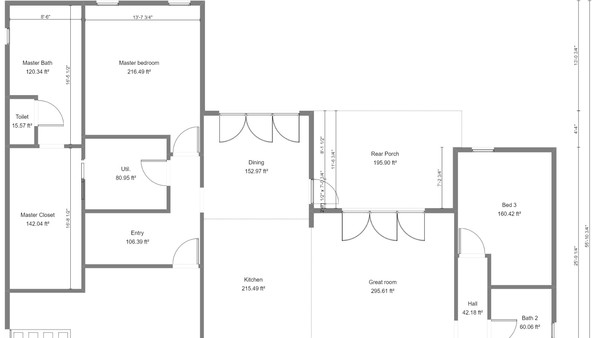
Een 2D-weergave zonder perspectief biedt een duidelijke weergave van de indeling met de plaatsing en afmetingen van muren, deuren, ramen en belangrijkste meubelstukken, evenals de oppervlakten.
Ontdek hoe eenvoudig het is om 2D-plattegronden te maken met Cedreo
- Gebruik je muis om snel een 2D-plattegrond helemaal opnieuw te tekenen
- Importeer een bestaande bouwtekening in JPG- of PNG-indeling
- Teken over bestaande tekeningen heen en ontwerp nieuwe indelingen met deuren en ramen
- Roteer of spiegel 2D-plattegronden op een verticale as met één klik
- Dupliceer de begane grond om een nieuwe etage te creëren
- Download en print jouw ontwerpen op schaal (met imperiale of metrische afmetingen)
- Bekijk oppervlaktetabellen die altijd actueel zijn


Pas de afmetingen van de 2D-plattegrond aan
Je kunt jouw plattegronden opslaan als sjablonen en deze voor elke nieuwe klant snel aanpassen. Pas het formaat aan door op de muren te klikken en te vergroten of verkleinen. Voeg binnenmetingen toe van muur tot muur. Oppervlaktetabellen worden automatisch bijgewerkt.
Pas plattegronden in realtime aan tijdens vergaderingen met klanten om het goedkeuringsproces te versnellen.
Converteer met één klik naar 3D
2D-plattegronden zijn de eerste stap in het ontwerpproces van een huis. Met de gebruiksvriendelijke software van Cedreo kun je jouw plattegrond in één klik omzetten naar een 3D-weergave.
Verbeter jouw 3D-huisindeling met Cedreo’s bibliotheek met materialen, meubels en andere decoraties. Jouw ontwerpvoorstel of brochure wordt nog aantrekkelijker met fotorealistische 3D-plattegronden.

Jouw alles-in-één ontwerpsoftware
Cedreo biedt alle functies die je nodig hebt om in een fractie van de tijd 2D-plattegronden te maken — geen uitbreidingen of plug-ins vereist!

Zwart-wit 2D-plattegrond
Door deze vereenvoudigde weergave kun je je concentreren op de indeling van de woning. Het bevat kamernamen, afmetingen, raam- en deuropeningen, draairichting van de deur, muren en wanddikte.

Duidelijke kleurcodering
De kleurgecodeerde kamers en gebieden maken jouw ontwerp in één oogopslag gemakkelijker te begrijpen. Raam- en deuropeningen zijn niet kleurgecodeerd, waardoor ze in deze weergave opvallen.

Verschillende wandtypes
Deze weergave toont alle wandtypes: binnenmuren, binnen- en/of buitenisolatie, muren voor natte zones, scheidingswanden en meer.

Meubilair
Deze gedetailleerde 2D-weergave toont de plaatsing van de belangrijkste meubels. Ontwerpers kunnen meubelpictogrammen snel verplaatsen of bewerken op basis van feedback van klanten.

Technische symbolen
Je kunt symbolen toevoegen die de plaatsing van belangrijke huiskenmerken weergeven, zoals verwarmingen, wasmachine- en drogeraansluitingen, warmwatertanks, stopcontacten en meer.

Oppervlaktetabel
Deze tabel toont de vierkante meters voor elke kamer, elke etage en voor het hele huis. Je kunt de veranda, het terras en de garage als bijgebouwen opnemen.
Efficiënt en nauwkeurig aan de slag met 2D-plattegronden
Cedreo heeft alle functies die je nodig hebt om binnen enkele minuten duidelijke en nauwkeurige 2D-plattegronden te maken. Zie hoe jouw 2D-lay-outs in 3D tot leven komen in een apart venster.

Online software
Cedreo is 100% online, dus je kunt jouw ontwerp wijzigen waar je ook bent. Het enige wat je nodig hebt is een laptop en internetverbinding.

Importeer plattegronden
Importeer een bestaande plattegrond of start een nieuw project. Klik en sleep om draagmuren en scheidingswanden te tekenen. Als je met de linkermuisknop klikt, worden hoeken met snelheid ingevoegd.

Teken in 2D en bekijk in 3D
Bekijk een levensecht model van jouw lay-out terwijl je in 2D tekent. Zij-aan-zij previews zorgen voor duidelijkheid tijdens het ontwerpproces.

Maak een buitenindeling
Teken landgrenzen of importeer een perceel om het hele perceel te visualiseren.

Plattegrondsymbolen toevoegen
Voeg plattegrondsymbolen toe die elementen vertegenwoordigen zoals ramen, muren, trappen en meubels.

Formaat van plattegrondindelingen wijzigen
Pas het formaat van de gehele plattegrond aan met slechts een paar klikken – je hoeft niet helemaal opnieuw te beginnen.

Afmetingen toevoegen
Voeg afmetingen toe in een gemakkelijk leesbare tabel aan de zijkant van de plattegrond om ze direct op de belangrijkste elementen op te nemen, zodat elke kijker een nauwkeurig beeld kan krijgen van het eindproduct.

Teken en print op schaal
Teken binnen enkele minuten 2D-plattegronden op schaal en print elke keer met precisie.
Veelgestelde Vragen
Wat is een 2D-plattegrond?
2D-plattegronden zijn tekeningen die een duidelijke weergave bieden van een terrein of gebouw. Hierin worden indelingen, plaatsing van meubels, soorten muren, deuren, ramen, landschapsarchitectuur en afmetingen weergegeven. Gekleurde plattegronden helpen de kamertypes en indeling te onderscheiden.
Wat is het verschil tussen 2D- en 3D-plattegronden?
2D-plattegronden worden voornamelijk gebruikt om technische aspecten te communiceren die aannemers nodig hebben om projecten te voltooien. Hierbij kun je denken aan details zoals draagmuren, muurtypes, openingsoriëntatie van ramen en deuren, en afmetingen. 3D-plattegronden geven een levensecht beeld, waardoor klanten kunnen visualiseren hoe de ontwerpelementen samenwerken en hoe hun meubels er in de nieuwe ruimte uit zal zien.
Kan ik een plattegrond voor een hele woning maken?
Ja, je kunt Cedreo software gebruiken voor woningprojecten waarmee je indelingen kunt maken voor hele huizen en hun afzonderlijke verdiepingen. Je kunt snel hogere verdiepingen en kelders toevoegen door alle buitenmuren te dupliceren, om volledige samenhang te garanderen.
Zijn 2D- of 3D-plattegronden beter?
2D- en 3D-plattegronden hebben verschillende doelstellingen. 2D-plattegronden zijn ideaal om meer technische details weer te geven, zoals de afmetingen van de muren, de openingsrichtingen en richtingen van de deur. Ze kunnen worden gedownload en op schaal worden afgedrukt. Ze schieten echter vaak tekort als verkoopinstrument, omdat ze voor klanten misschien moeilijk te lezen en te begrijpen zijn. Volledig ingerichte 3D-plattegronden geven een echt gevoel van de woningindeling.